Prospekt
Kostenlose Prospekt­mappe bestellen
Kontakt

EFH Bubikon

Individuelles Architektenhaus

Einfamilienhaus Bubikon.

Grundriss

Möchten Sie gerne genauere Details oder weitere Grundrisse nach Mass?

Fordern Sie am besten gleich unsere ausführliche Prospektmappe an.

Projektdetails

  • Generationenhaus / Einfamilienhaus mit Einliegerwohnung
  • 2 ½ & 5 ½ Zimmer
  • 2 Wohn- und 1 Untergeschoss
  • Hobby- und Nebenräume im Untergeschoss
  • Separate Hauseingänge im Erdgeschoss
  • Offene Wohnräume und gedeckter Sitzplatz
  • Küche mit Kochinsel und Vorratsraum
  • Schlafzimmer, 2 Badezimmer im Obergeschoss
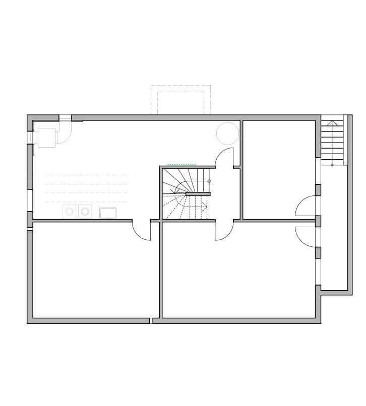
Untergeschoss
Untergeschoss
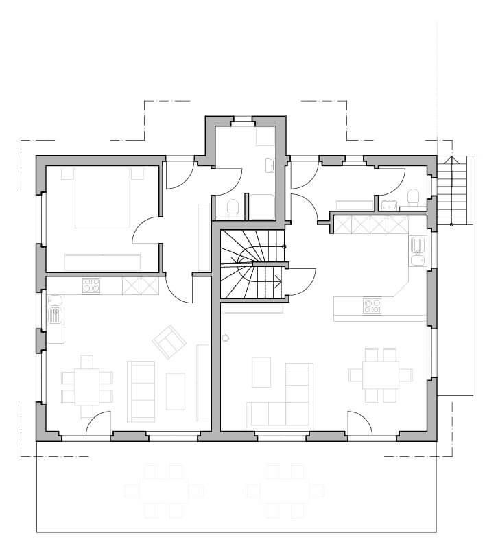
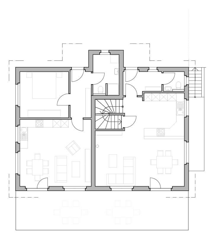
Erdgeschoss
Erdgeschoss
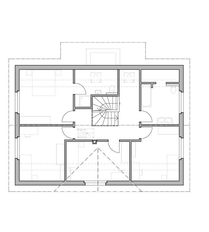
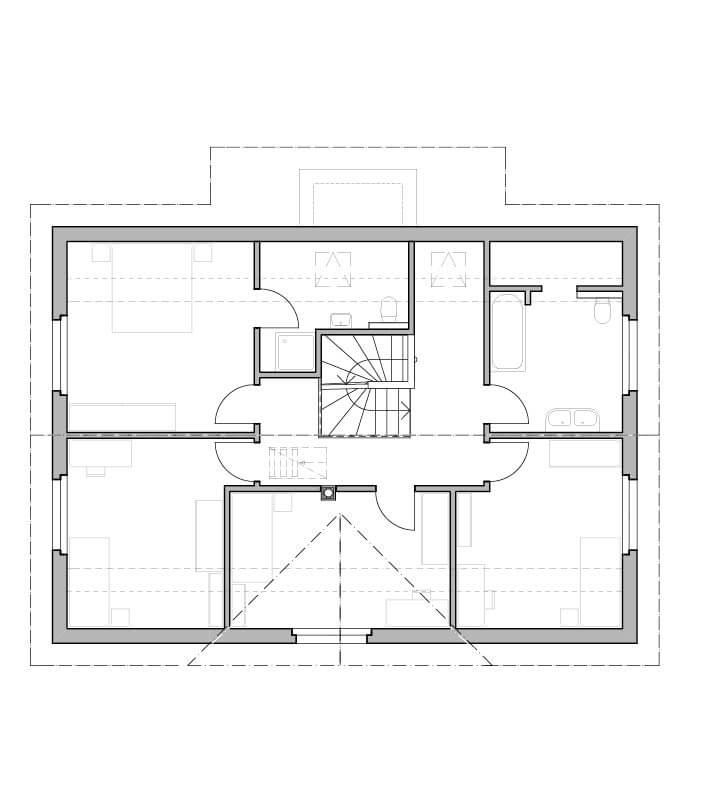
Obergeschoss
Obergeschoss
Einfamilienhaus Bubikon
Bauprojekt Einfamilienhaus Bubikon