Alico — Lichtdurchflutete Volumen

Alico
Highlights

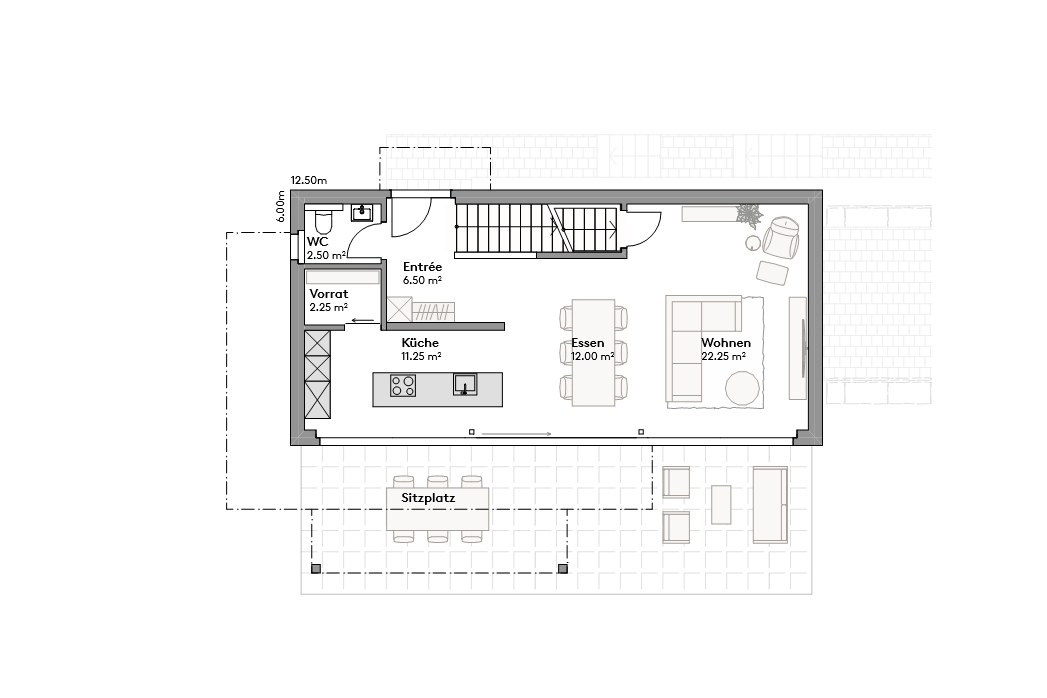
  • 173 m² Wohnfläche
  • 5 ½ Zimmer Einfamilienhaus
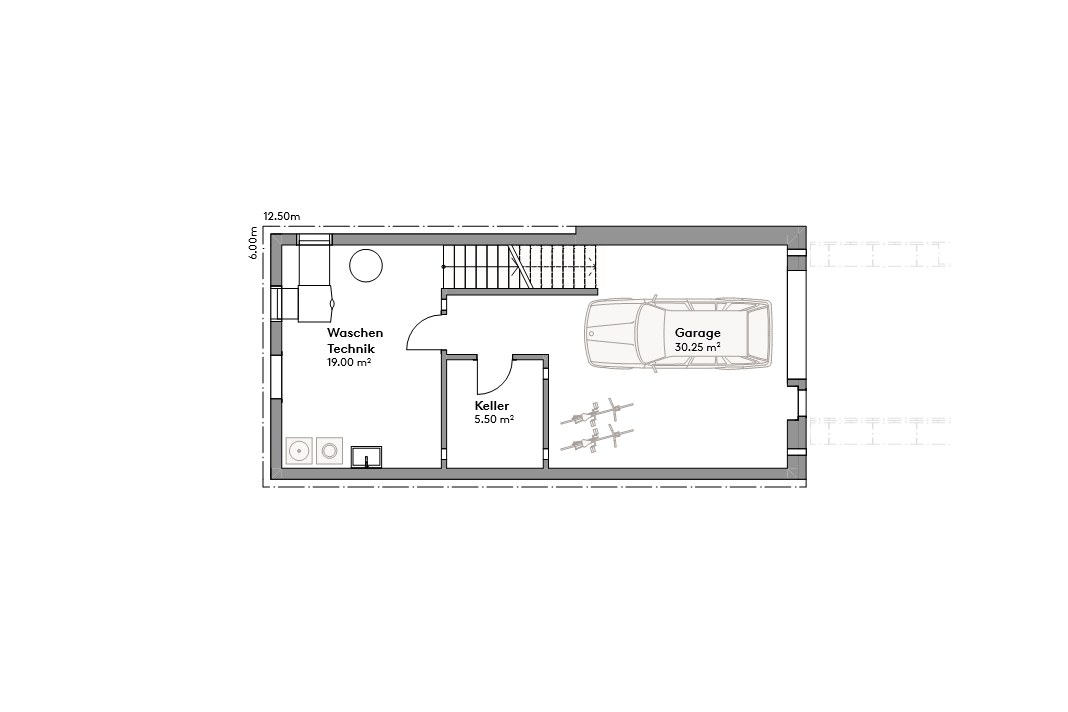
  • Zwei Wohngeschosse und ein Untergeschoss
  • Wohngeschoss im Loftstil
  • Extravagante Küche, Vorratsraum
  • Grosser gedeckter Sitzplatz
  • Schöne, helle Schlafzimmer mit Platz für Ankleide
  • Viele Nebenräume, Disponibelraum

Grundrisse,
die überzeugen