MFH Appenzell — Individuelles Architektenhaus

MFH Appenzell
Highlights

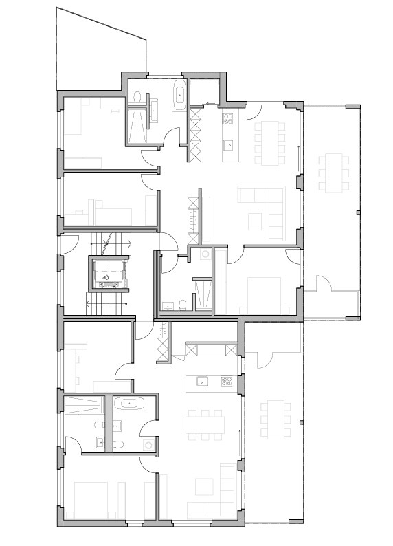
  • 6 Wohnungen, 1x 2 ½, 2x 3 ½ & 3x 4 ½ Zimmer-Wohnung
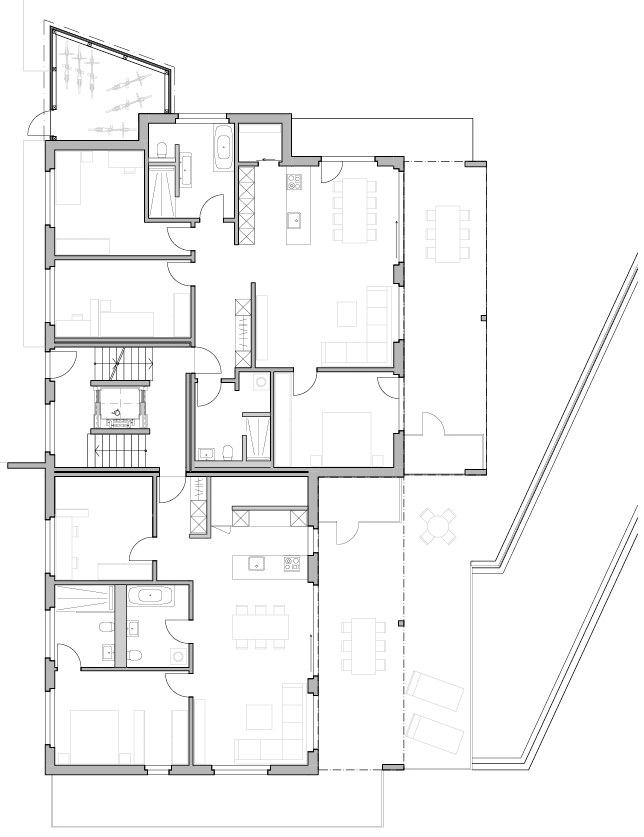
  • 1 Unter- 3 Wohn- und ein Dachgeschoss
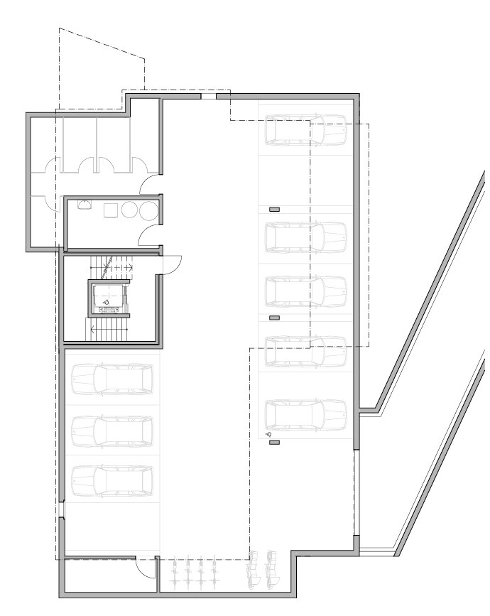
  • Tiefgarage und Nebenräume im Untergeschoss
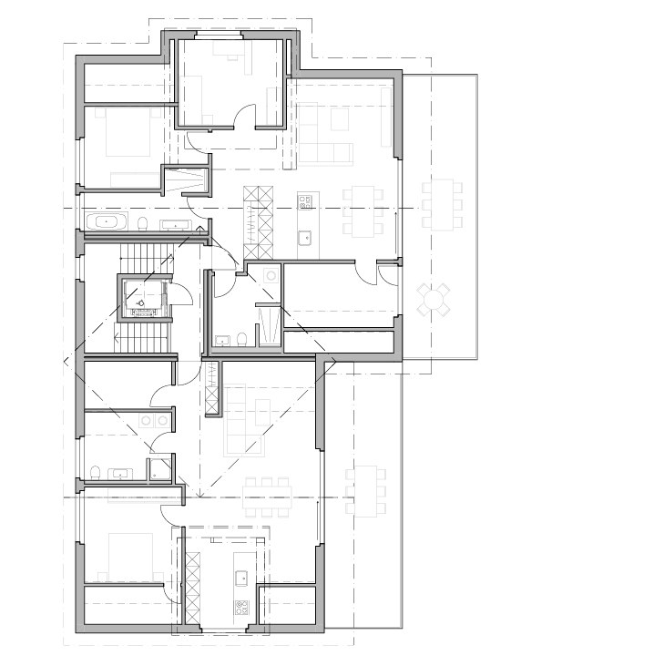
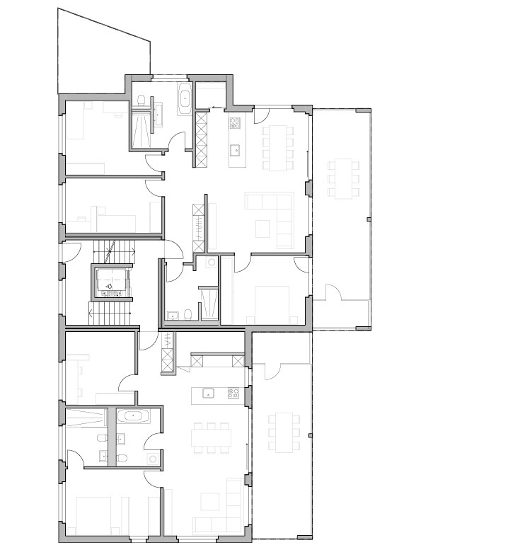
  • Zentrales Treppenhaus mit Lift, Interessante Raumgestaltung
  • Offene Wohnräume mit grosser Terrasse und gedecktem Sitzplatz
  • Küche mit Kochinsel und Vorratsraum
  • Schlafzimmer mit Ankleide, meist zwei Bäder
  • Dem Wohngebiet angepasste Architektur mit Satteldach

Grundrisse,
die überzeugen