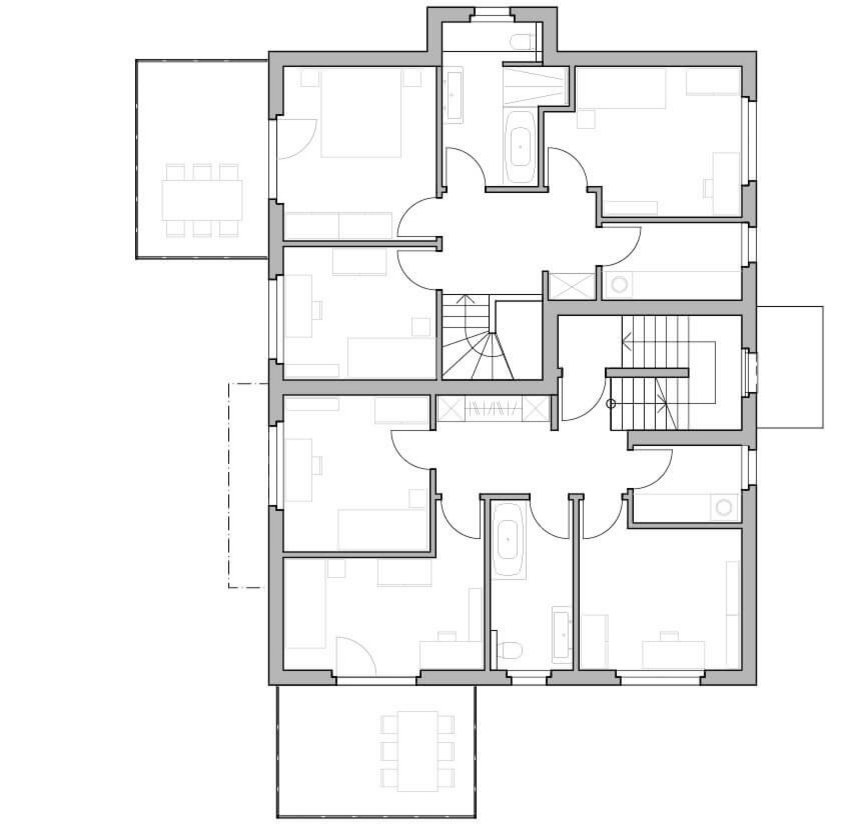
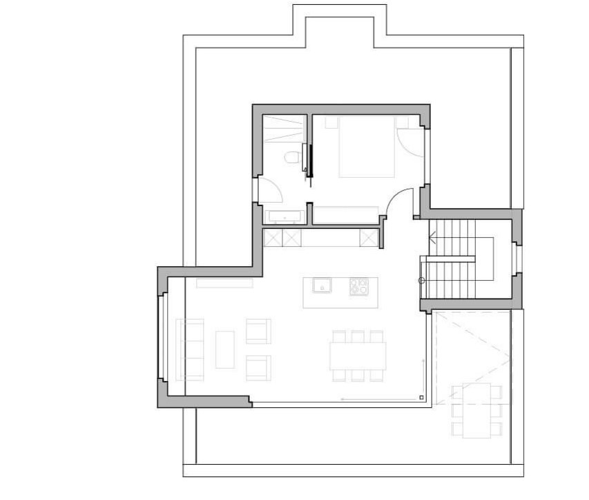
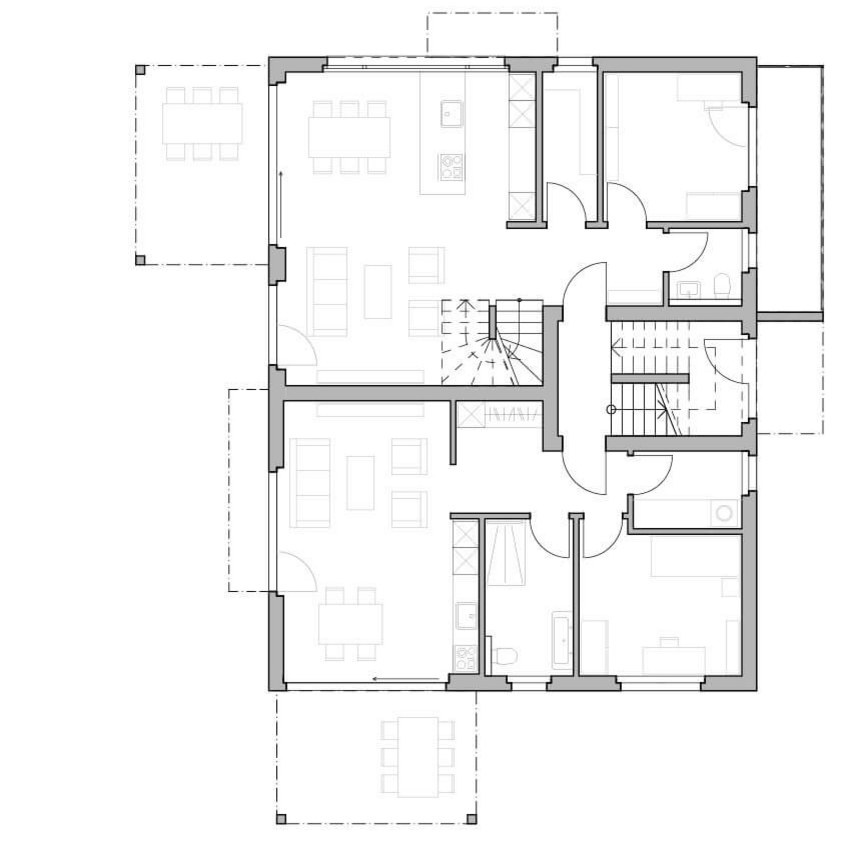
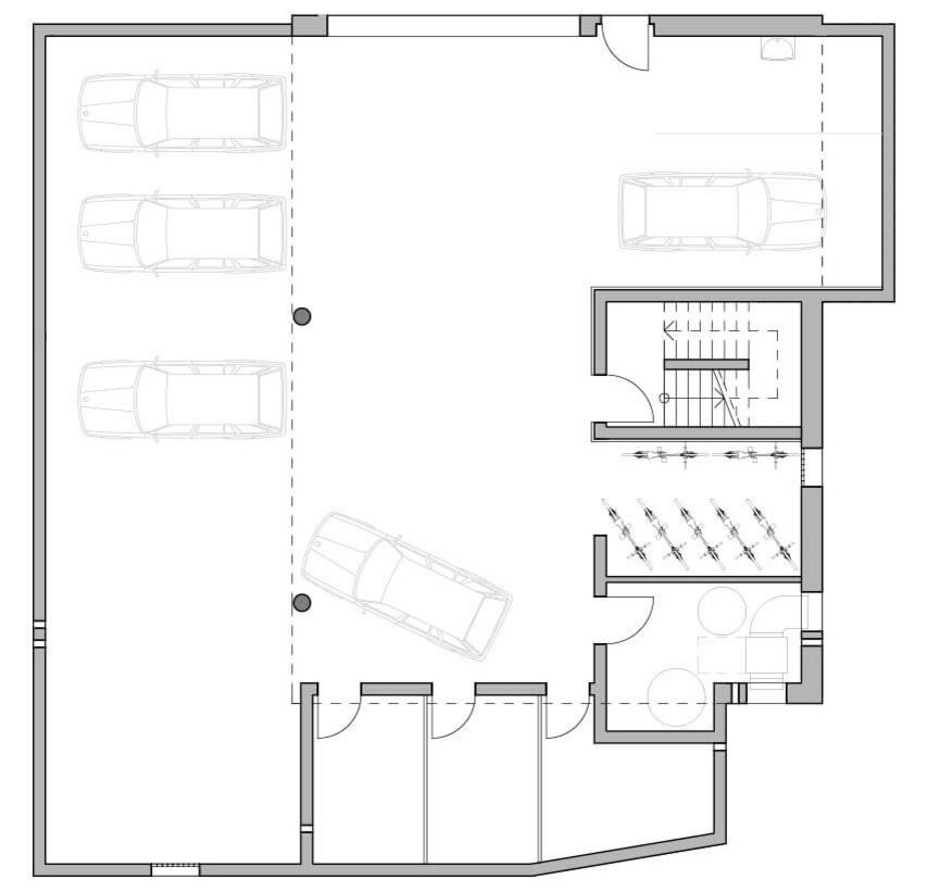
3FH Galgenen — Individuelles Architektenhaus

3FH Galgenen
Highlights

  • Generationenhaus / Dreifamilienhaus
  • 2 ½ und 2 x 5 ½ Zimmer - Wohnung
  • 2 Wohn-, 1 Unter- und 1 Attikageschoss
  • Tiefgarage und Nebenräume im Untergeschoss
  • Gemeinsamer Hauseingang im Zwischengeschoss
  • Offene Wohnräume, Küche teils mit Kochinsel, gedeckte Sitzplätze
  • Büro, Schlafzimmer und meisst 2 Badezimmer

Grundrisse,
die überzeugen