Zwirlo — Abwechslungsreiche Wohngestaltung

Zwirlo
Highlights

  • 200 m² Wohnfläche
  • 6 ½ Zimmer Einfamilienhaus
  • Zwei Wohngeschosse und ein Untergeschoss
  • Attraktives, modernes Design
  • Grosszügiger, offener Wohnraum
  • Gedeckter Sitzplatz, Balkon
  • Vier grosse Schlafzimmer und ein Gästezimmer
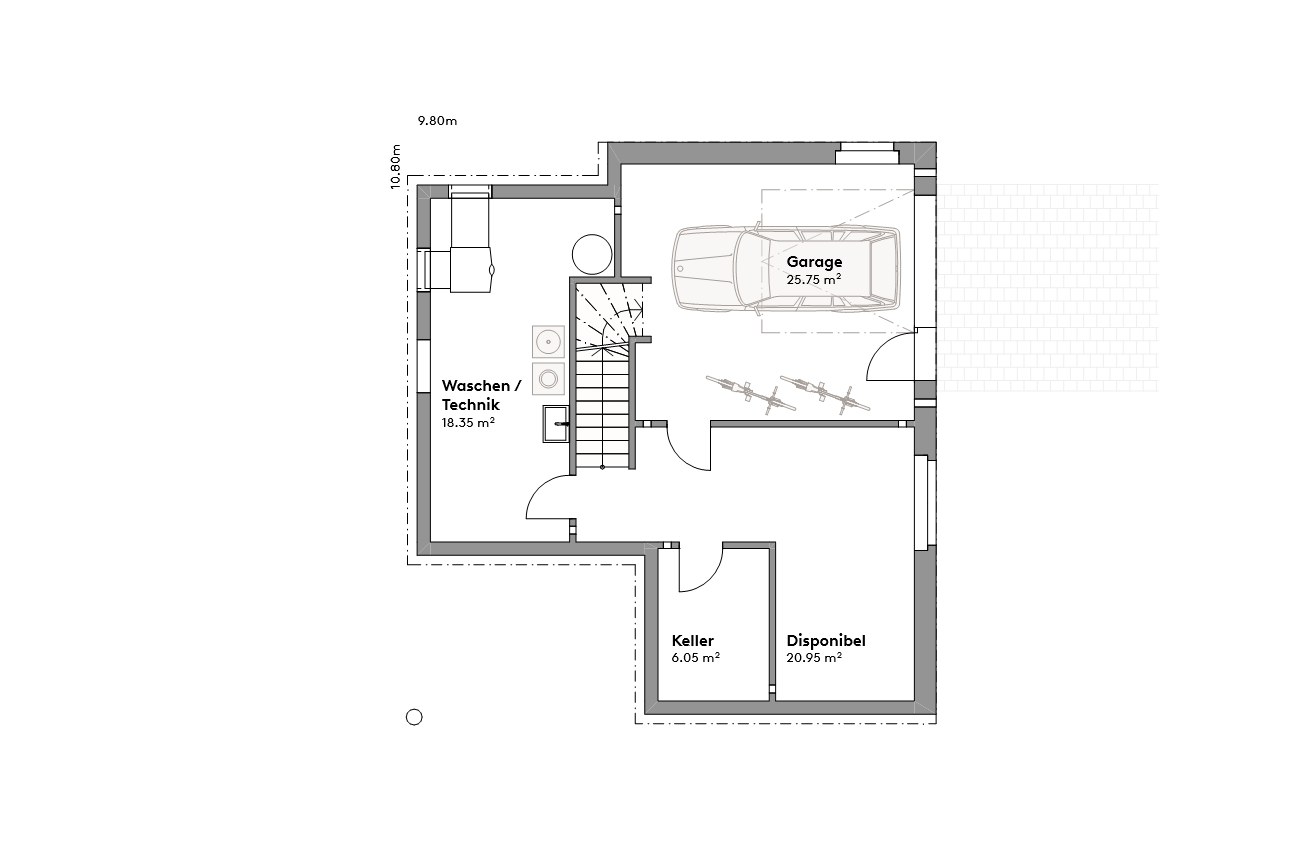
  • Grosse Garage und Nebenräume

Grundrisse,
die überzeugen