Zusei — Grosszügiger Wohnraum zweigeteilt

Zusei
Highlights

  • 339 m² Wohnfläche
  • 6 ½ Zimmer Einfamilienhaus mit 3 ½ Zimmer Einliegerwohnung im Erdgeschoss
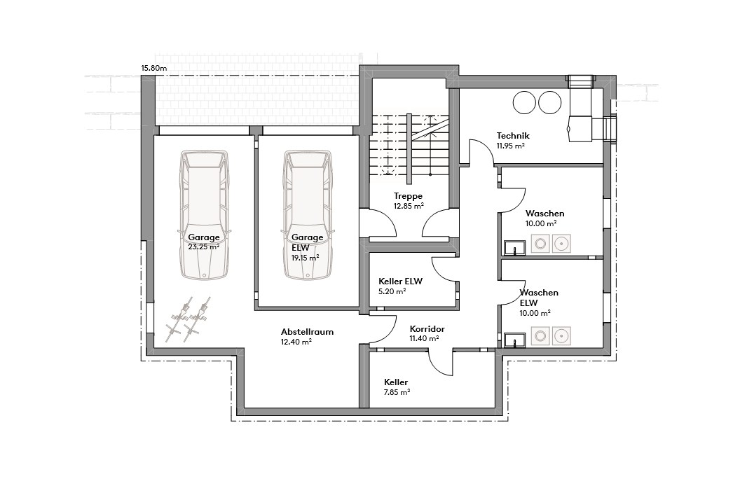
  • Zwei Wohngeschosse und ein Untergeschoss
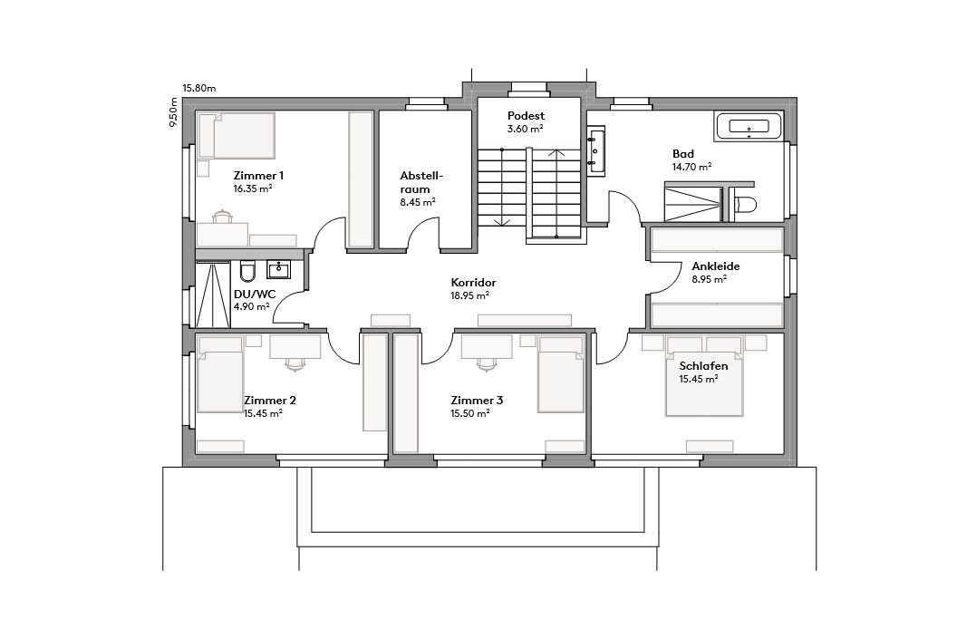
  • Grosse Räume im Erd- und Obergeschoss
  • Offener Wohn-/Ess-/Küchenbereich mit Zugang zum gedeckten Sitzplatz
  • Zwei Badezimmer und ein Ankleidezimmer im Obergeschoss
  • Zwei getrennte Garagen für Haus und Wohnung im Untergeschoss

Grundrisse,
die überzeugen