Tenga — Freude am Eigenheim

Tenga
Highlights

  • 162 m² Wohnfläche
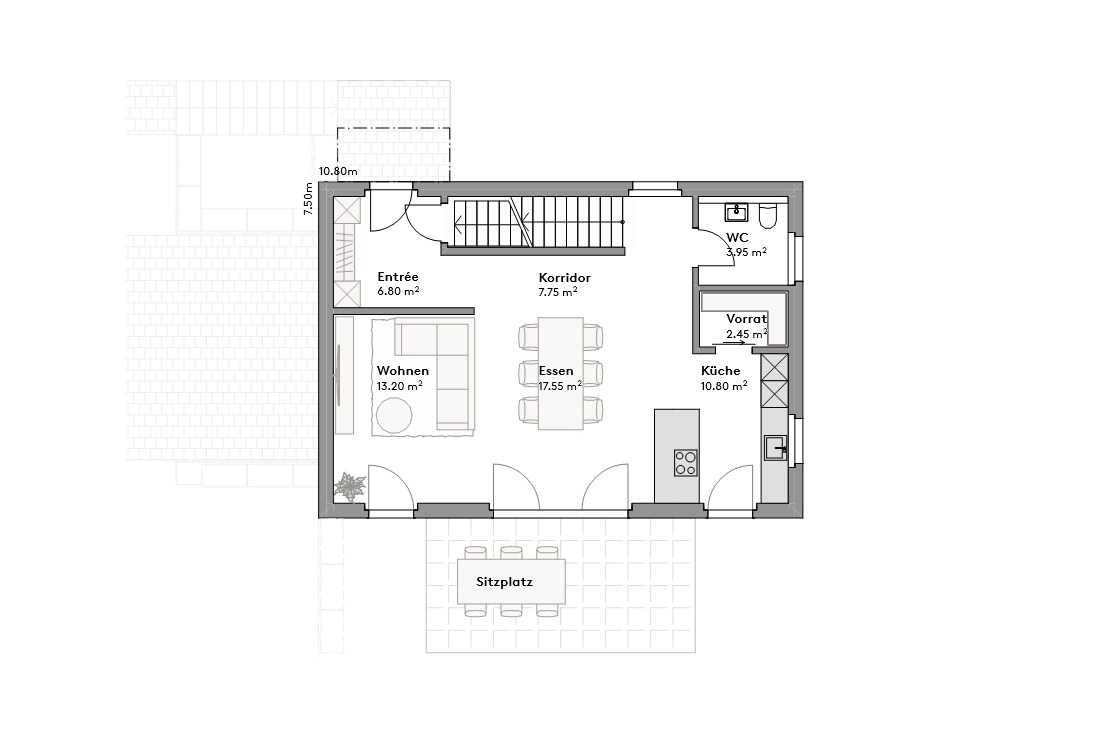
  • 5 ½ Zimmer Einfamilienhaus (mit variablem Wohn-/Essbereich)
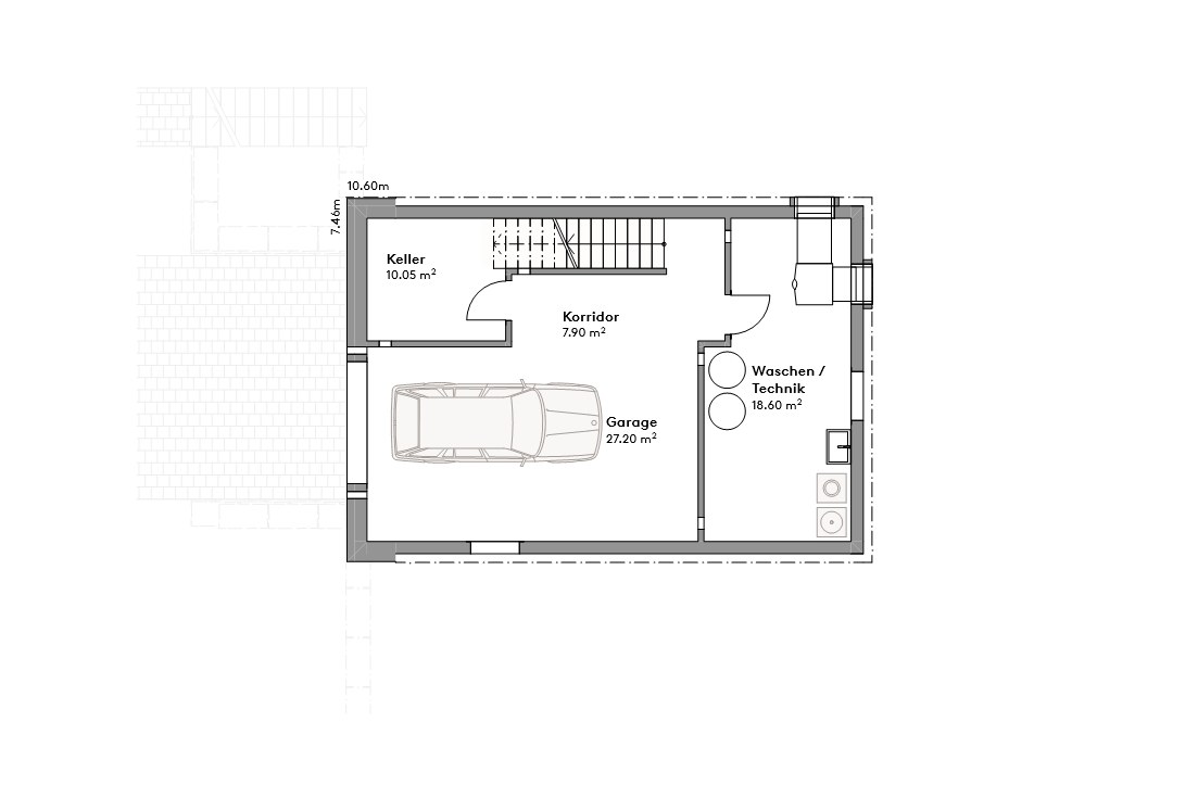
  • Zwei Wohngeschosse und ein Untergeschoss
  • Formschöne Architektur
  • Variable Grundrissgestaltung
  • Obergeschossräume mit Dachschräge ab voller Raumhöhe
  • Arbeits- oder Spielecke
  • Variante mit Garage, Carport, gedecktem Sitzplatz etc.

Grundrisse,
die überzeugen