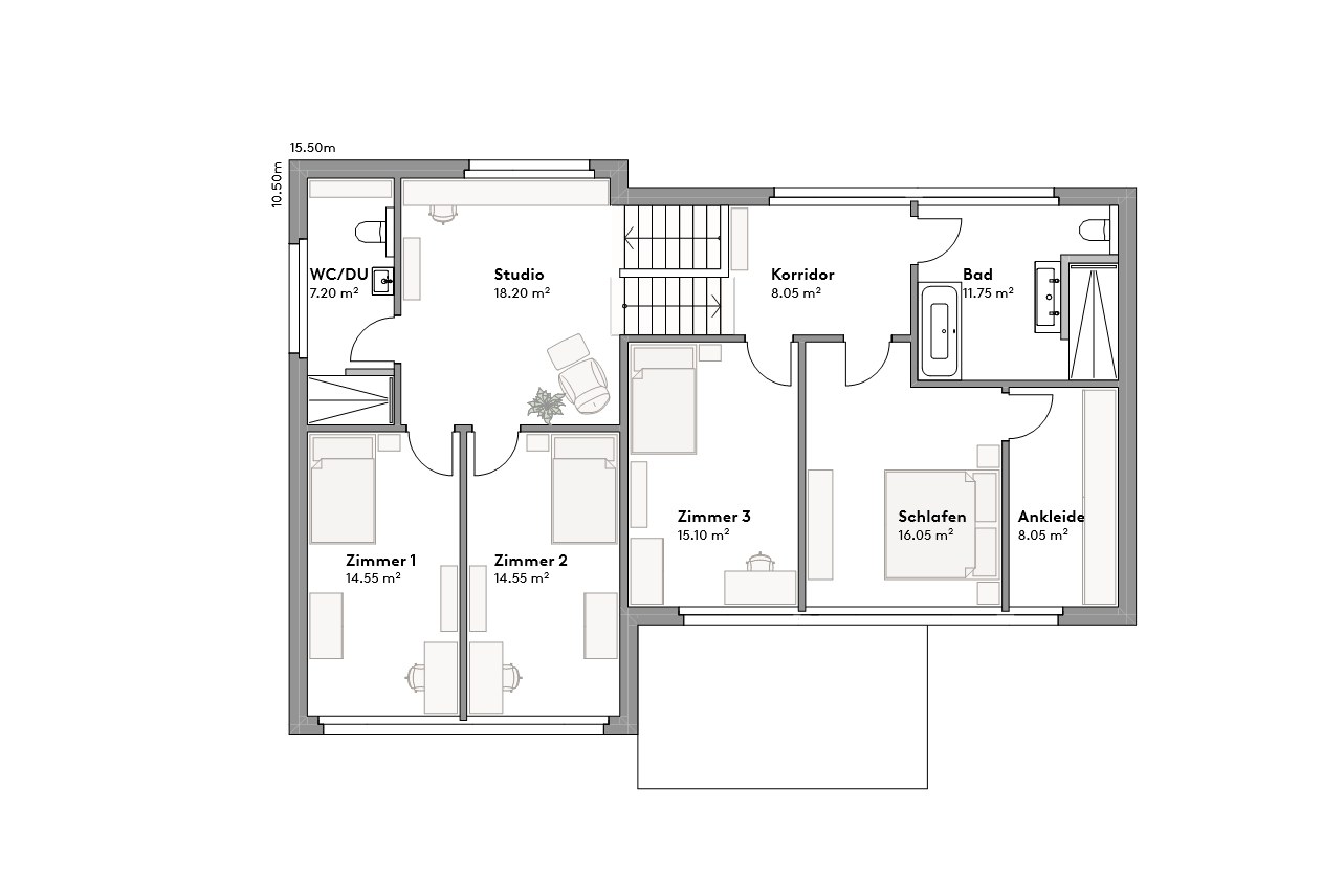
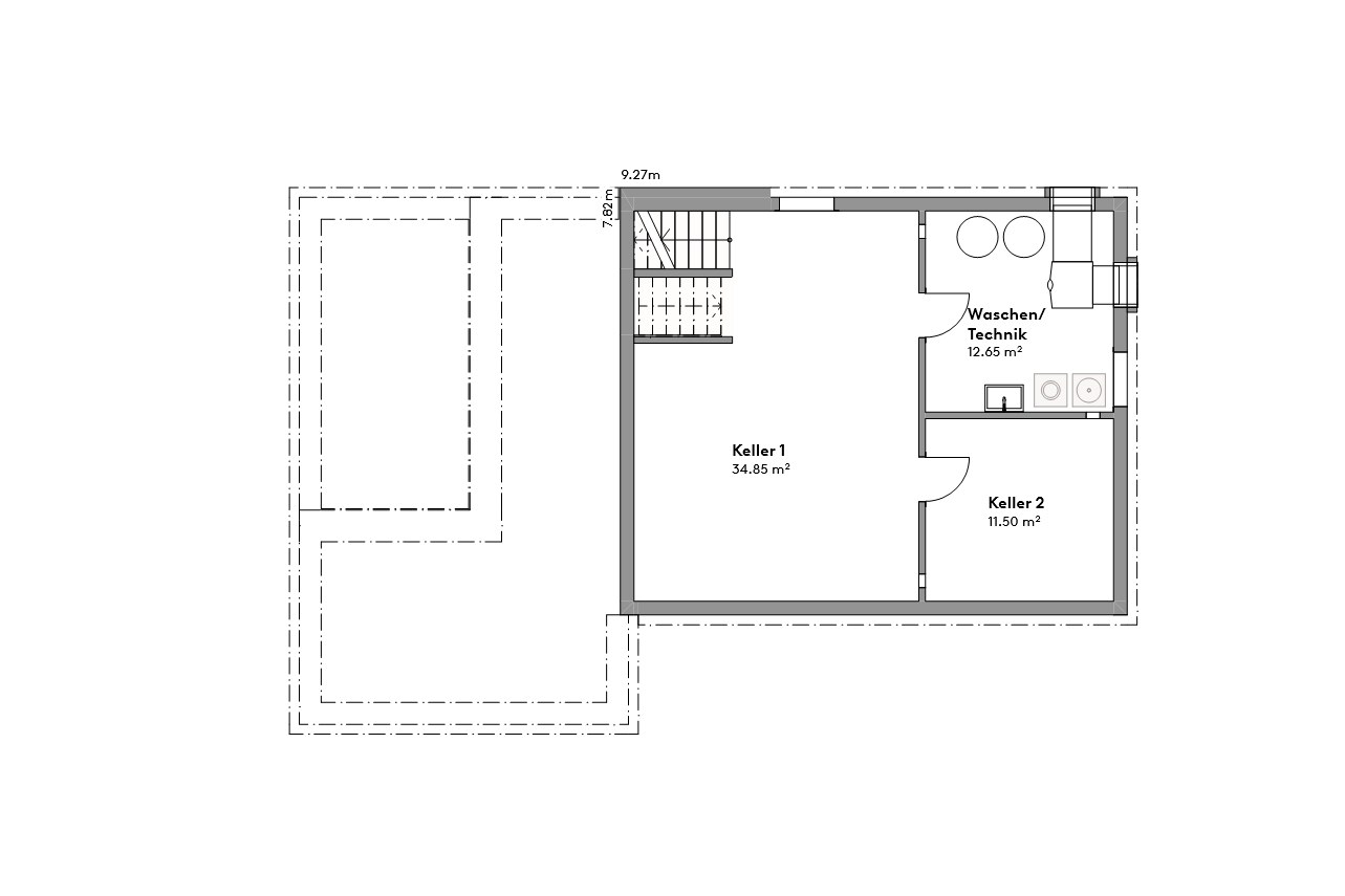
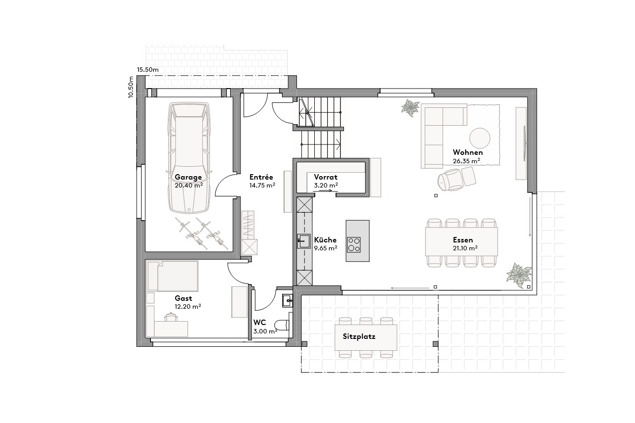
Solce «XL» — Topographisch angepasst Wohnen

Solce «XL»
Highlights

  • 252 m² Wohnfläche
  • 7 ½ Zimmer Einfamilienhaus
  • Zwei Wohngeschosse und ein Untergeschoss, halbgeschossig versetzt, ergeben eine sehr praktische und ergonomische Raumeinteilung
  • Attraktives, modernes Design
  • Sehr variabler Grundriss, Garage ebenerdig oder im Untergeschoss
  • Grosszügiger offener Wohnraum, offene Küche mit Kochinsel und Vorratsraum
  • Grosszügige Räume, gedeckter Sitzplatz

Grundrisse,
die überzeugen