Siello — Helles Raumwunder

Siello
Highlights

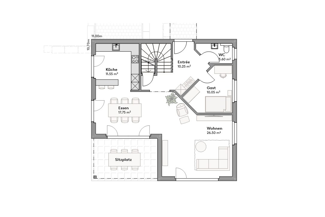
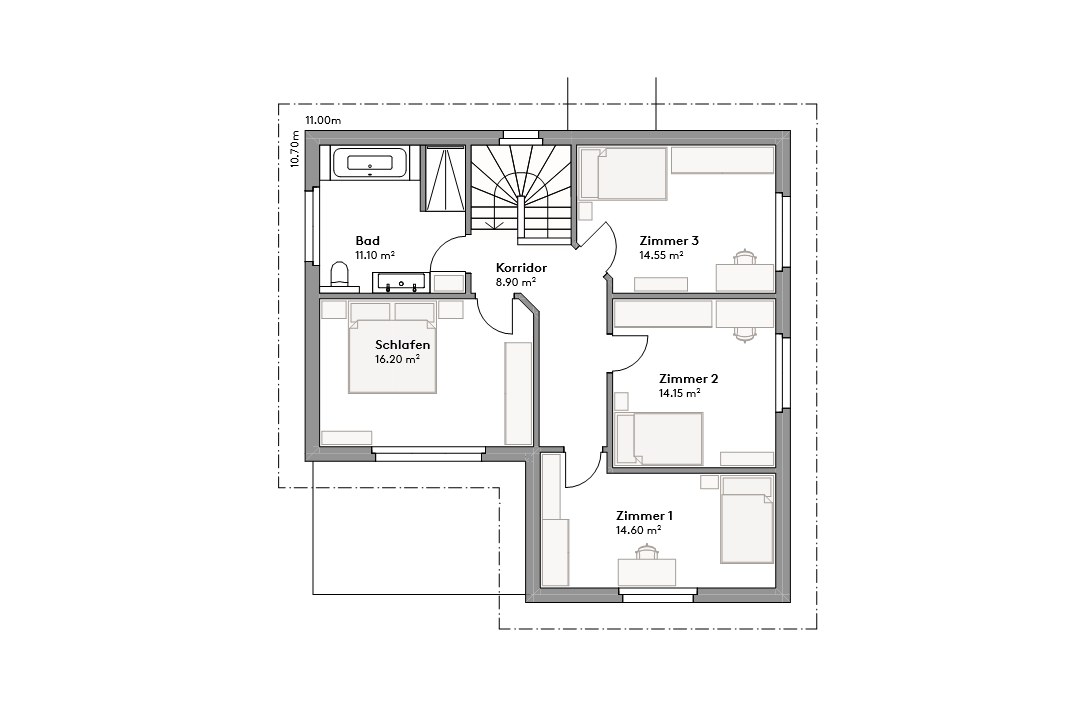
  • 202 m² Wohnfläche
  • 6 ½ Zimmer Einfamilienhaus
  • Zwei Wohngeschosse und ein Untergeschoss
  • Modern und hell in allen Geschossen
  • Volle Raumhöhe in allen Zimmern
  • Gedeckter Sitzplatz, Balkon
  • Viele Grundrissmöglichkeiten

Grundrisse,
die überzeugen