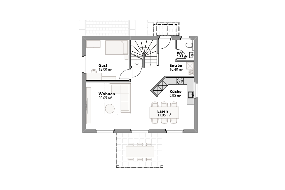
Primo Highlights 167 m² Wohnfläche 5 ½ Zimmer Einfamilienhaus Zwei Wohngeschosse und ein Untergeschoss Klare Linien Ideales Konzept mit südorientierten Fenstern Balkon und Studio im Obergeschoss Experten-Beratung PDF erstellen Grundrisse, die überzeugen Untergeschoss Erdgeschoss Obergeschoss Weitere Inspirationen 173 m² 5.5 Zimmer Alico Lichtdurchflutete Volumen 203 m² 6.5 Zimmer Aspira Dynamisches Wohlfühldesign 165 m² 5.5 Zimmer Avalon Modernes Wohnkonzept 173 m² 5.5 Zimmer Alico Lichtdurchflutete Volumen 203 m² 6.5 Zimmer Aspira Dynamisches Wohlfühldesign 165 m² 5.5 Zimmer Avalon Modernes Wohnkonzept Zur Übersicht