Pior — Repräsentatives Eigenheim

Pior
Highlights

  • 205 m² Wohnfläche
  • 5 ½ bis 6 ½ Zimmer Einfamilienhaus im Landhausstil
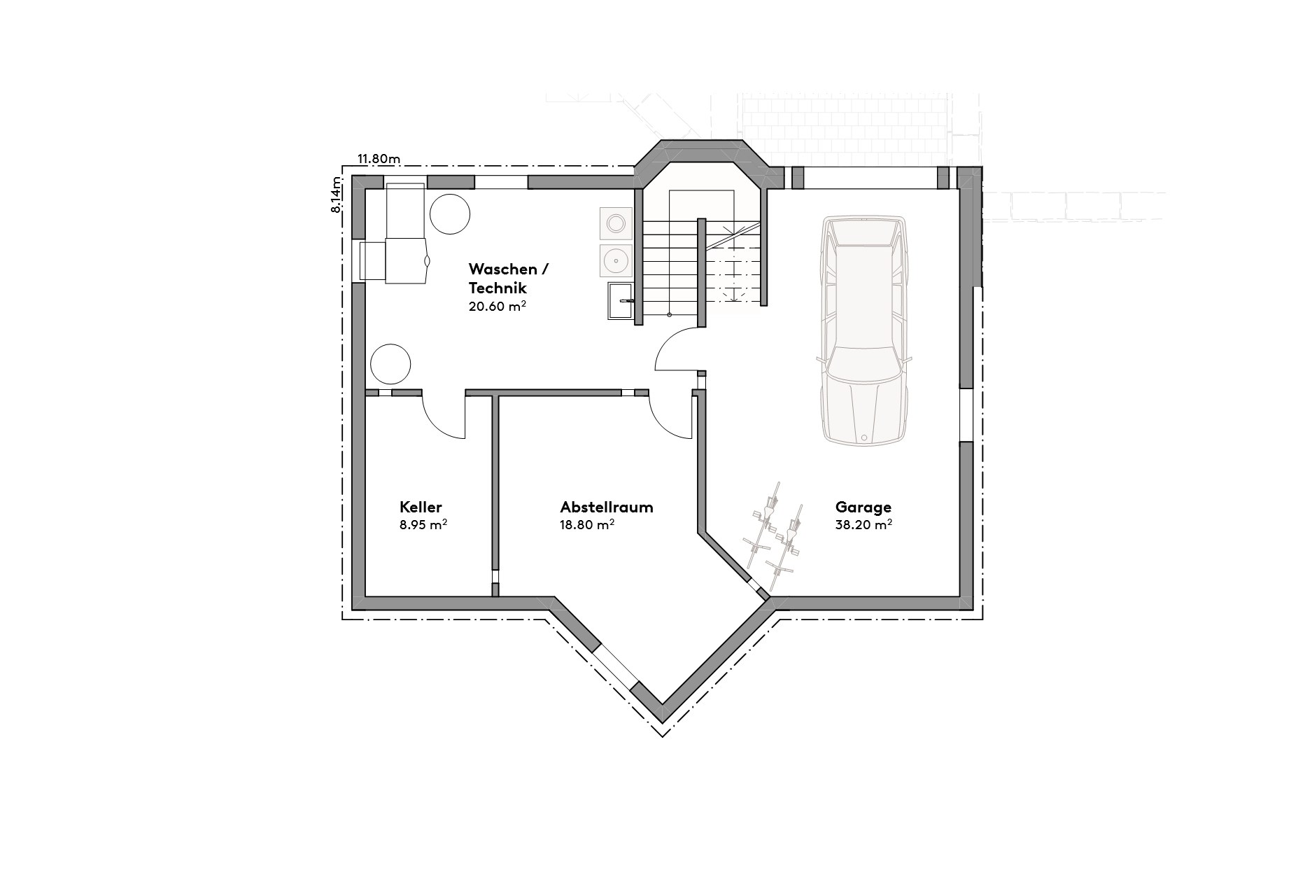
  • Zwei Wohngeschosse und ein Untergeschoss
  • Quergiebel mit Balkon vor Schlafzimmer im Obergeschoss
  • Gedeckter Sitzplatz bei Esszimmernische
  • Offenes Wohn- und Esszimmer mit Erker
  • Grosszügige Zimmer im Obergeschoss
  • Garage und Nebenräume im Untergeschoss
  • Dachgeschoss unter Dachschräge mit 130 cm Kniestockhöhe
  • Variante mit abgeschlossener Wohn-Essküche

Grundrisse,
die überzeugen