Talo — Charaktervolle Architektur

Talo
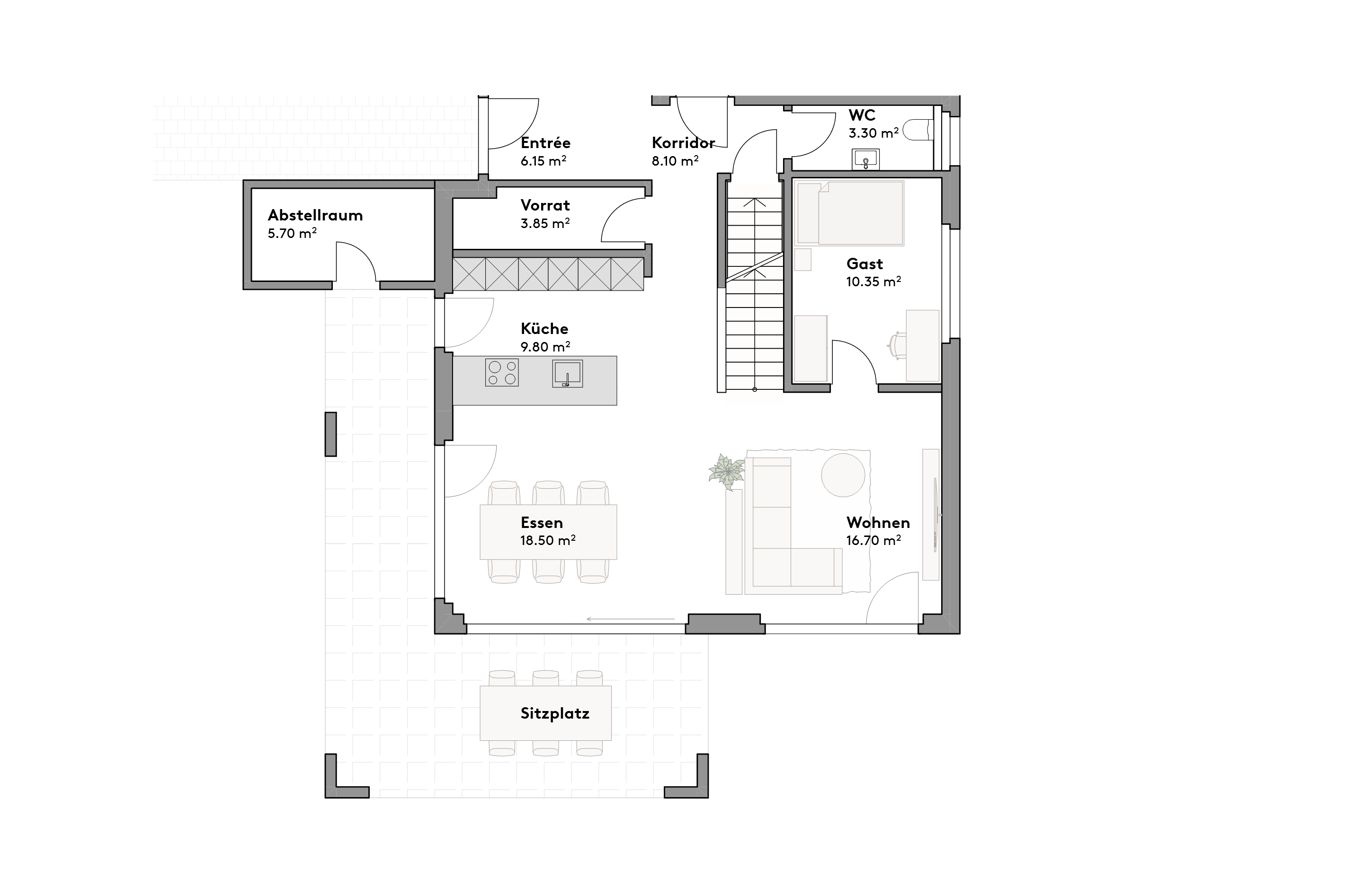
Highlights

  • 204 m² Wohnfläche
  • 6 ½ Zimmer Einfamilienhaus
  • Zwei Wohngeschosse und ein Untergeschoss
  • Attraktives, modernes Design
  • Grosszügiger, offener Wohnraum mit Kochinsel und Vorratsraum
  • Aussenabstellraum und grosser gedeckter Sitzplatz
  • Angebaute Garage im Erdgeschoss
  • Schöne, helle Schlafzimmer mit Raum für Ankleide
  • Grosses Wohlfühlbad
  • Viele Variationen möglich

Grundrisse,
die überzeugen