Senso — Ausdrucksstarke Leichtigkeit

Senso
Highlights

  • 272 m² Wohnfläche
  • 6 ½ Zimmer Einfamilienhaus
  • Zwei Wohngeschosse und ein Untergeschoss
  • Wohnen, Lounge, Essen und Küche offen im Loftstil
  • Küche mit Kochinsel und grossem Vorratsraum
  • Gedeckter Sitzplatz
  • Gastbereich mit Dusche und Toilette
  • Masterschlafraum mit Balkon, grosser Ankleide und Wohlfühlbad mit freistehender Badewanne
  • Viele Variationsmöglichkeiten

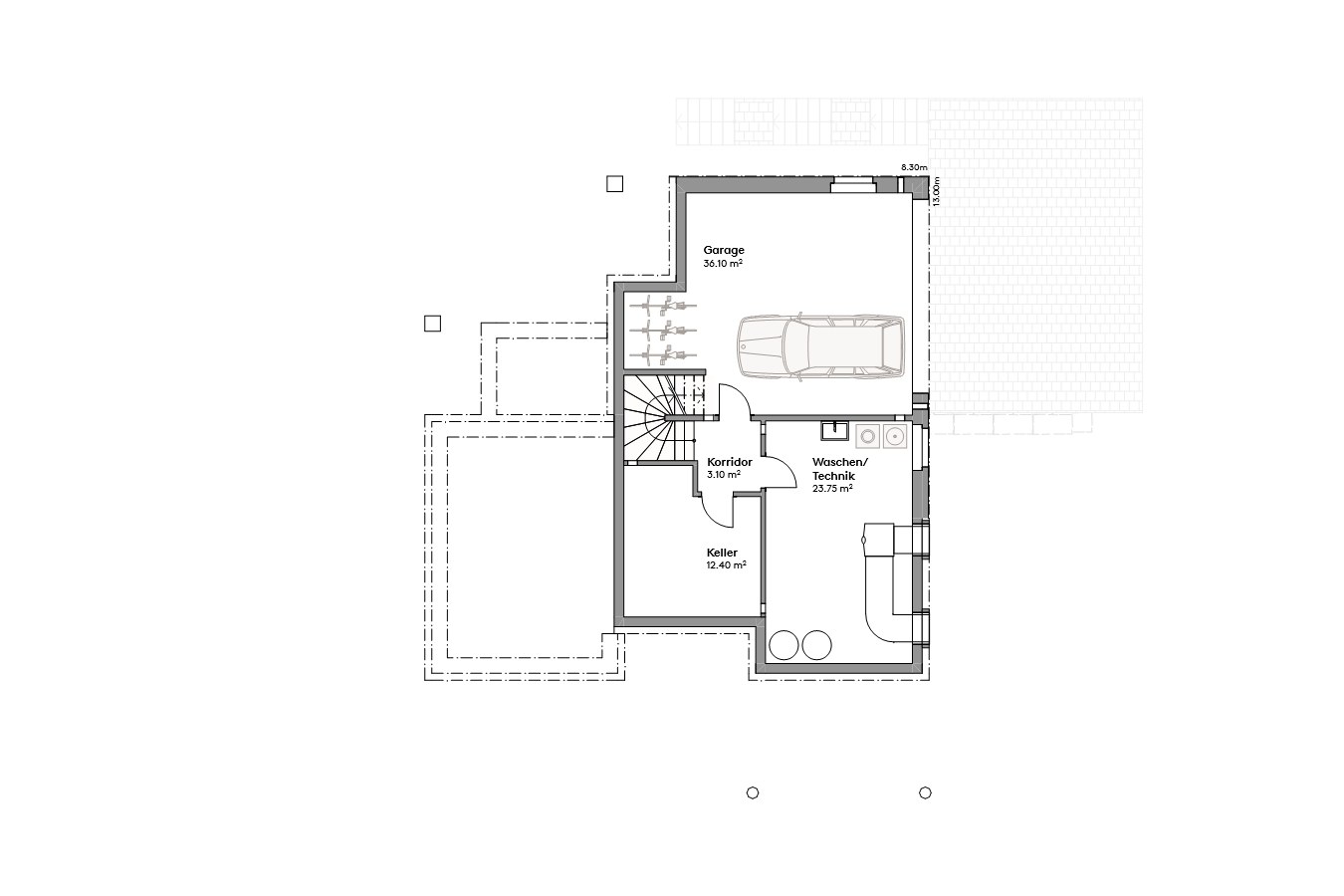
Grundrisse,
die überzeugen