EFH Widnau — Individuelles Architektenhaus

EFH Widnau
Highlights

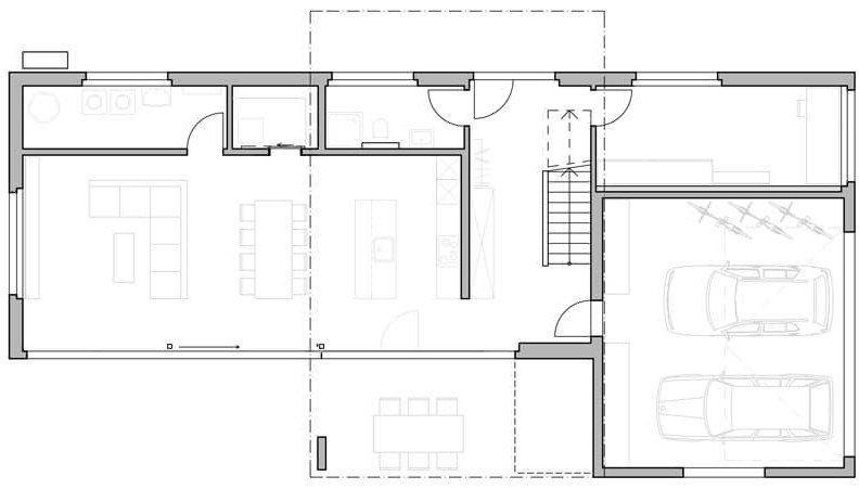
  • Einfamilienhaus
  • 5 ½ Zimmer
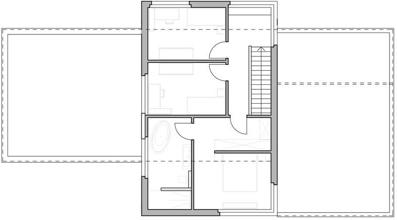
  • 2 Wohngeschosse, keine Unterkellerung
  • Doppelgarage im Parterre
  • Offener Wohnbereich
  • Küche mit Kochinsel und Vorratsraum
  • Grosser gedeckter Sitzplatz
  • Elternschlafbereich mit Ankleide und separatem Bad, freistehende Badewanne

Grundrisse,
die überzeugen