EFH Uzwil — Individuelles Architektenhaus

EFH Uzwil
Highlights

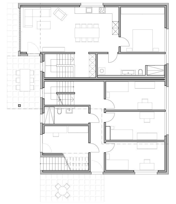
  • 7 ½ & 3 ½ Zimmer Wohnung
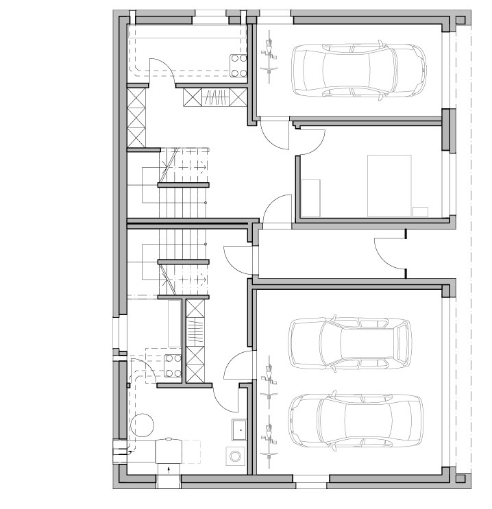
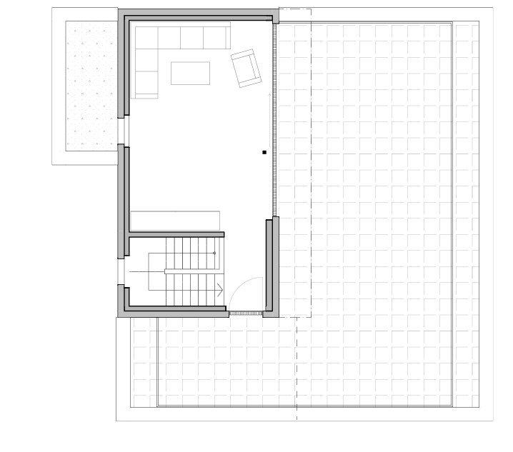
  • 1 Unter-, 2 Wohn- und 1 Attikageschoss
  • Garagen, gemeinsamer rHauseingang, ein Zimmer und Nebenräume im Untergeschoss
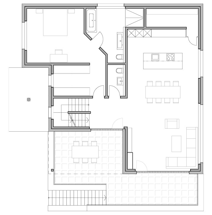
  • Einliegerwohnung 2-Stöckig und Kinderzimmer im EG
  • Offene Wohnraum, Terrasse mit Gartentreppe und gedeckter Sitzplatz im Erdgeschoss
  • Küche mit Kochinsel und Vorratsraum
  • Elternschlafbereich mit Ankleide und Bad
  • Studio und Terrasse im Attikageschoss

Grundrisse,
die überzeugen