EFH Trin — Individuelles Architektenhaus

EFH Trin
Highlights

  • Einfamilienhaus
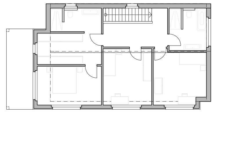
  • 5 ½ Zimmer
  • 2 Wohn- und 1 Untergeschoss
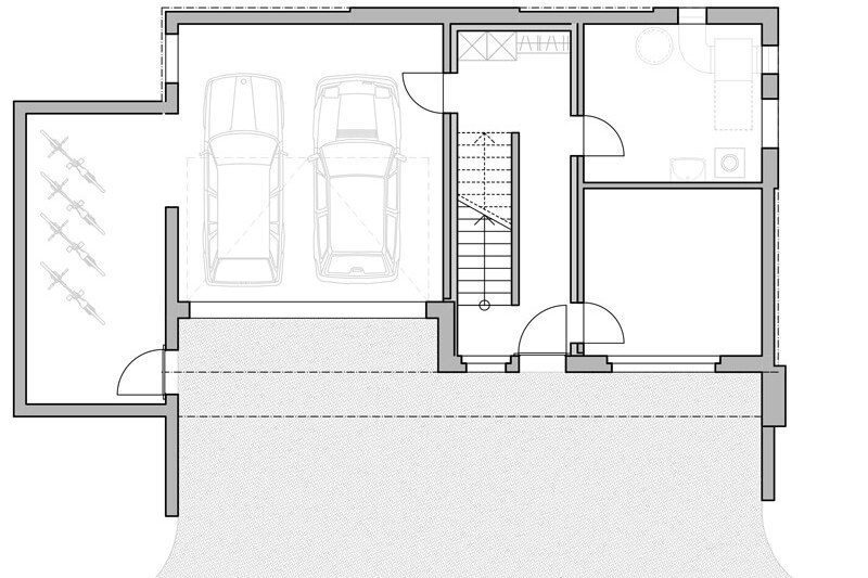
  • Doppelgarage und Fahrradraum
  • Eingang im Untergeschoss
  • Gerade Wohnungstreppe
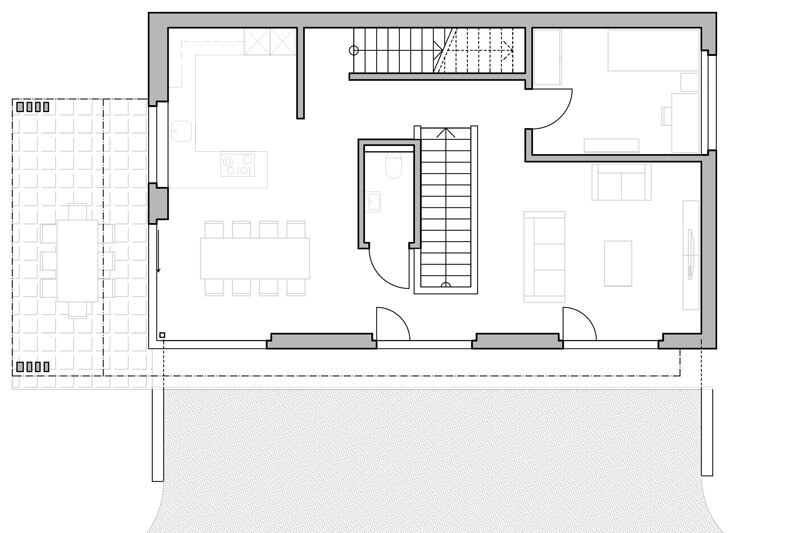
  • Offener Wohnbereich
  • Küche mit Kochinsel
  • Grosser gedeckter Sitzplatz
  • Grosszügige Zimmer
  • Elternbereich mit Schlafen, Ankleide und Du/Wc

Grundrisse,
die überzeugen