EFH Flurlingen — Individuelles Architektenhaus

EFH Flurlingen
Highlights

  • Einfamilienhaus
  • 7 ½ Zimmer
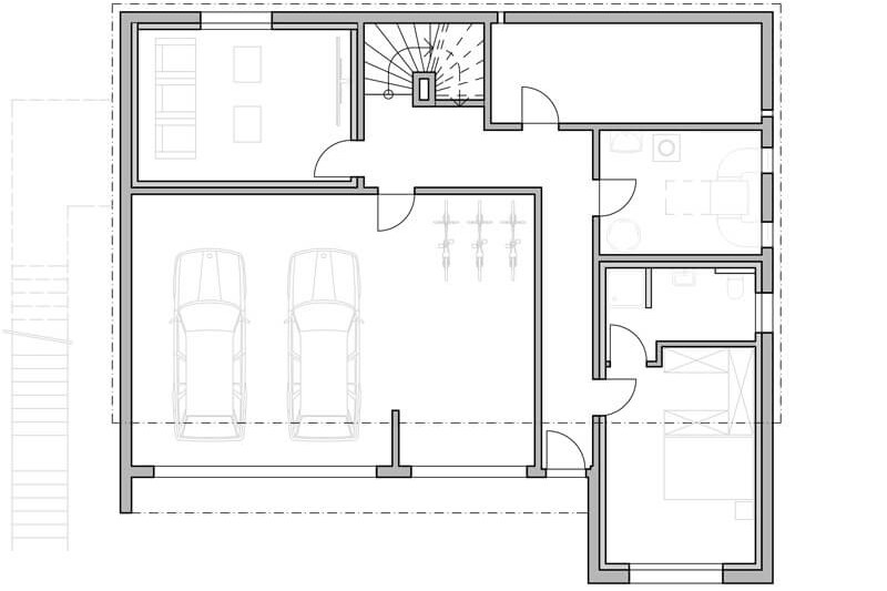
  • 1 Wohn-, Attika- und 1 Untergeschoss
  • 3-fach Garage im Untergeschoss
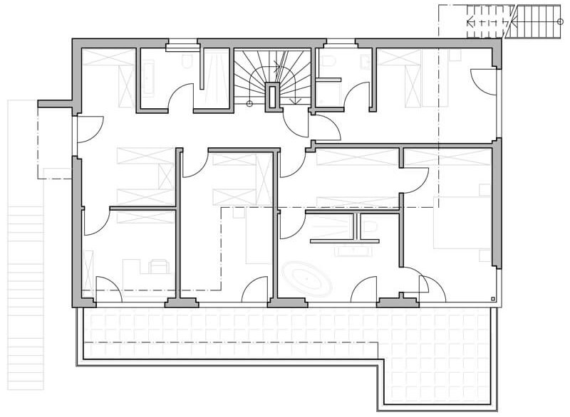
  • Schlafzimmer mit Ankleide
  • Hobbyraum im Untergeschoss
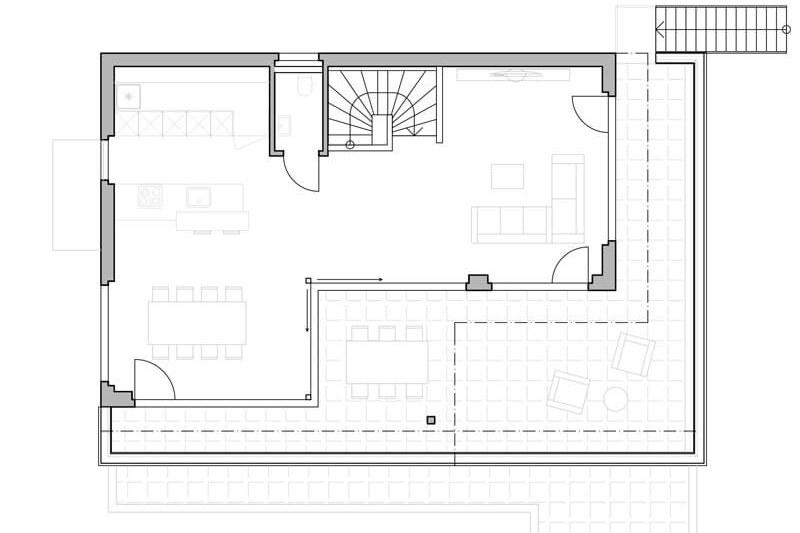
  • Küche mit Kochinsel und Vorratsraum
  • Grosser gedeckter Sitzplatz
  • Elternschlafbereich mit Ankleide und separatem Bad, freistehende Badewanne
  • Nasszelle separat für die Kinder
  • Wohnbereich im Attika: Vorrat, Küche mit Kochinsel, Essen, Wohnen und grosse Terrasse
  • Pool im Garten

Grundrisse,
die überzeugen