EFH Degersheim — Individuelles Architektenhaus

EFH Degersheim
Highlights

  • Einfamilienhaus
  • 4 ½ Zimmer
  • 2 Wohngeschosse an Hanglage
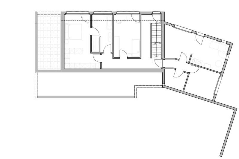
  • Schlafbereich im Erdgeschoss
  • Elternbereich mit Schlafen, Ankleide und separatem Bad
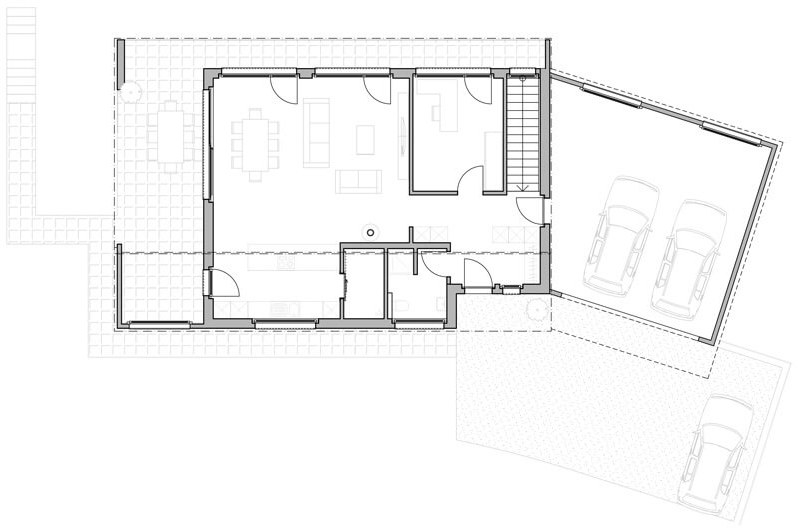
  • Grosse Doppelgarage
  • Wohnraum offen, Küche mit Kochinsel und Vorratsraum
  • Gedeckter Sitzplatz
  • Schrägdach

Grundrisse,
die überzeugen