EFH Buchs — Individuelles Architektenhaus

EFH Buchs
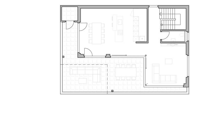
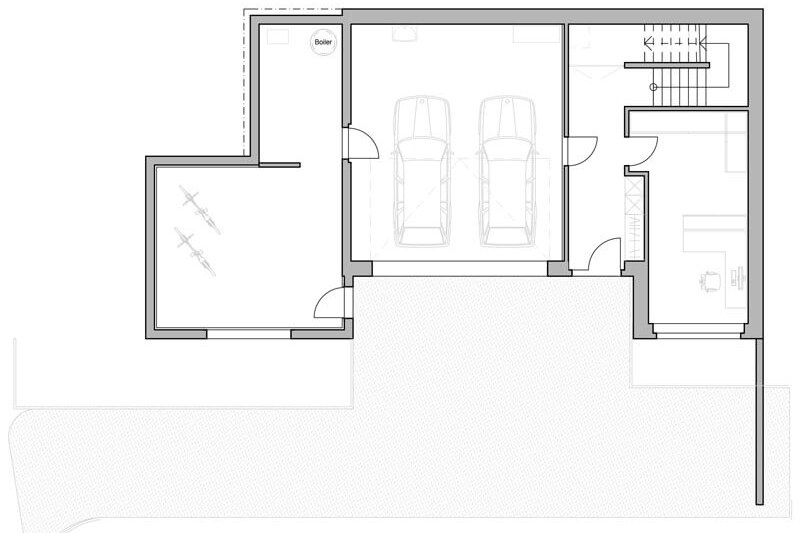
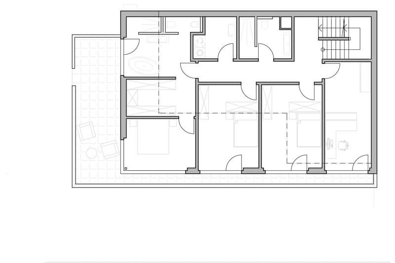
Highlights

  • Einfamilienhaus
  • 6 ½ Zimmer
  • 2 Wohn- und 1 Untergeschoss
  • Doppelgarage und Eingang im UG
  • Wohnbereich im OG
  • Grosse Terrasse mit Aussicht
  • Küche mit Kochinsel und Vorratsraum
  • Elternschlafbereich im EG mit Ankleide und separatem Bad, freistehende Badewanne
  • drei Nasszellen

Grundrisse,
die überzeugen