EFH Bubikon — Individuelles Architektenhaus

EFH Bubikon
Highlights

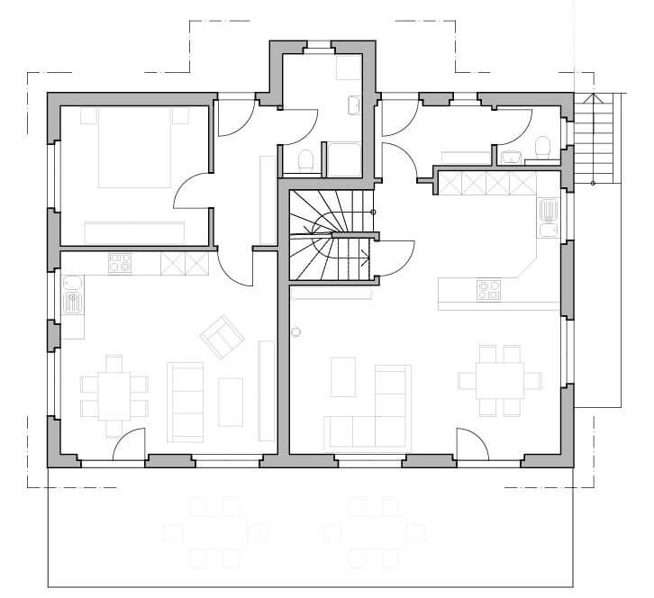
  • Generationenhaus / Einfamilienhaus mit Einliegerwohnung
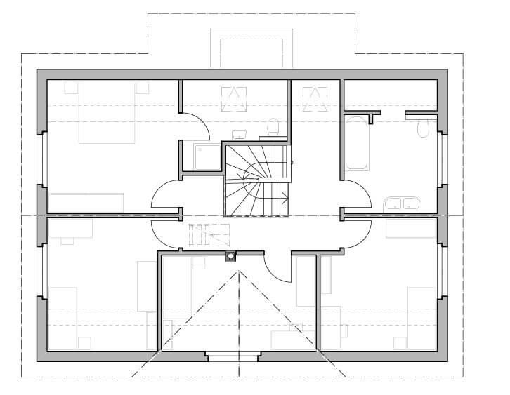
  • 2 ½ & 5 ½ Zimmer
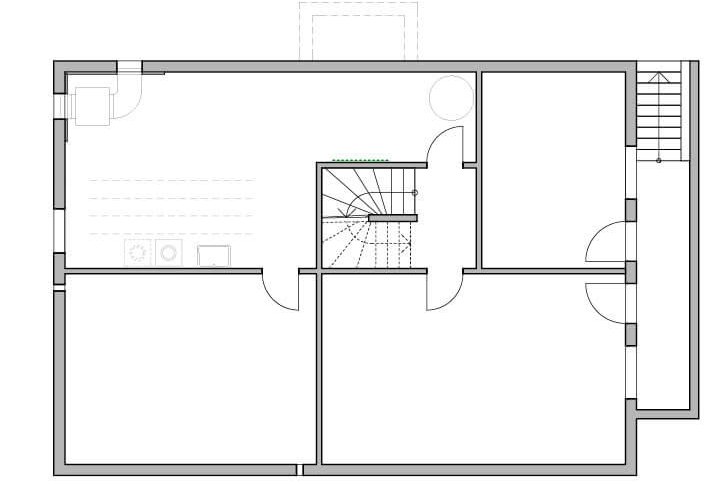
  • 2 Wohn- und 1 Untergeschoss
  • Hobby- und Nebenräume im Untergeschoss
  • Separate Hauseingänge im Erdgeschoss
  • Offene Wohnräume und gedeckter Sitzplatz
  • Küche mit Kochinsel und Vorratsraum
  • Schlafzimmer, 2 Badezimmer im Obergeschoss

Grundrisse,
die überzeugen