EFH Arnegg — Individuelles Architektenhaus

EFH Arnegg
Highlights

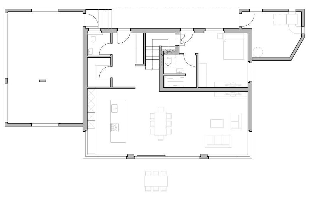
  • Generationenhaus / Einfamilienhaus mit Einliegerwohnung
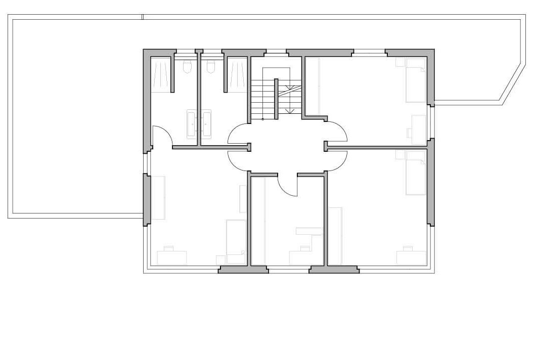
  • 1 & 6 ½ Zimmer
  • 2 Wohn- und 1 Attikageschoss
  • Garage und Nebenräume im Erdgeschoss
  • Einliegerwohnung und Wohnräume im Erdgeschoss
  • Offener Wohnbereich mit Küche/Kochinsel und Vorrat
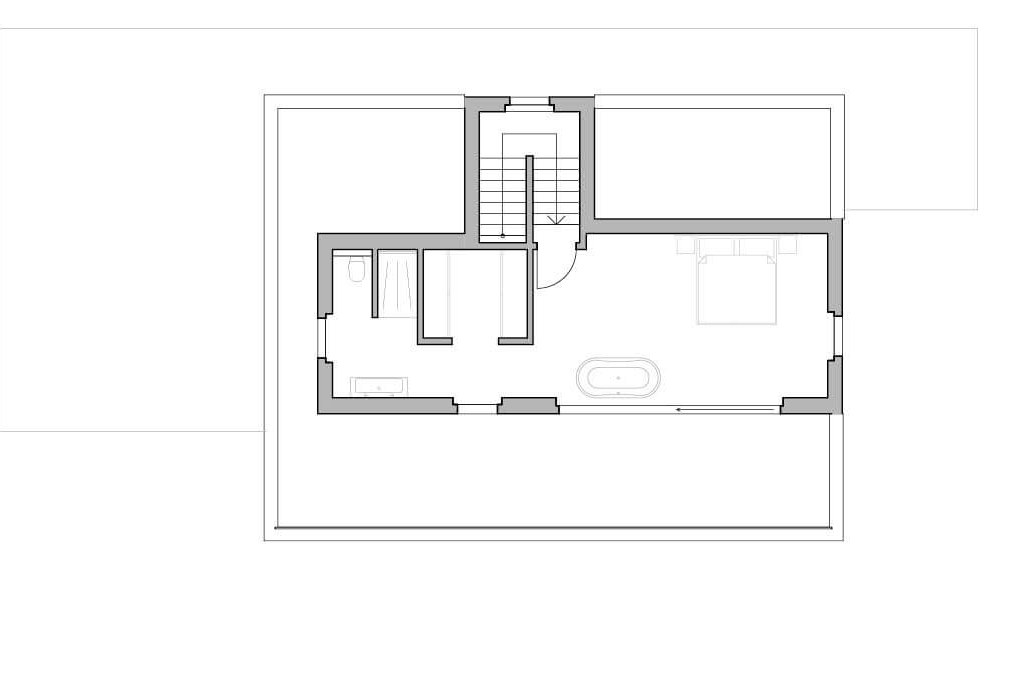
  • Büro, Schlafz- und Badezimmer im Obergeschoss
  • Elternbereich mit Badezimmer, Ankleide und Terrasse im Attikageschoss

Grundrisse,
die überzeugen