EFH Altstätten — Individuelles Architektenhaus

EFH Altstätten
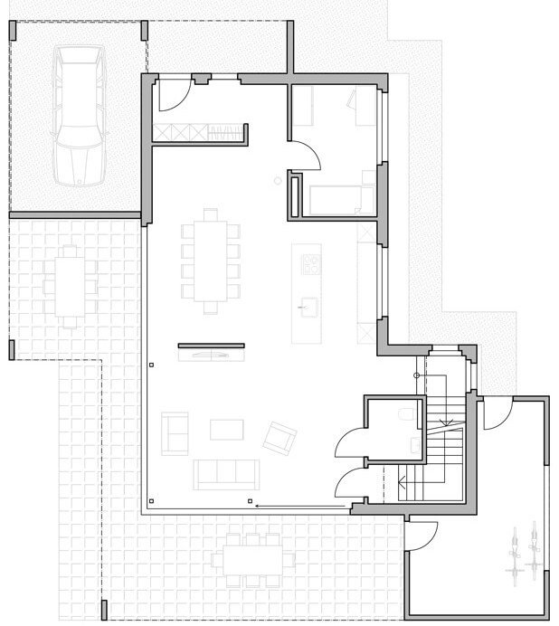
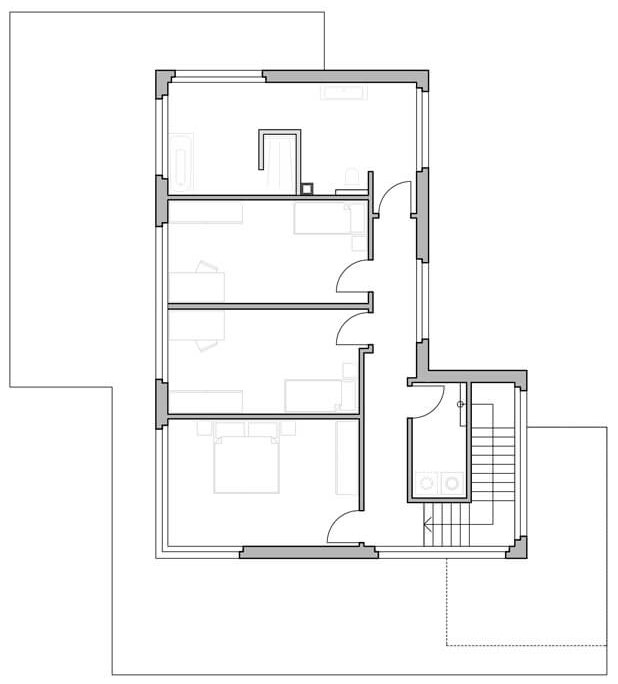
Highlights

  • Einfamilienhaus
  • 5 ½ Zimmer
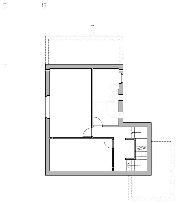
  • 2 Wohn- und 1 Untergeschoss
  • Teilunterkellerung
  • Carport und Abstellraum
  • Offener Wohnraum, Küche mit Kochinsel
  • Grosser gedeckter Sitzplatz über Eck
  • Grosszügige Schlafzimmer
  • Grosses Wohlfühlbad

Grundrisse,
die überzeugen