Bravo — Einfach und praktisch

Bravo
Highlights

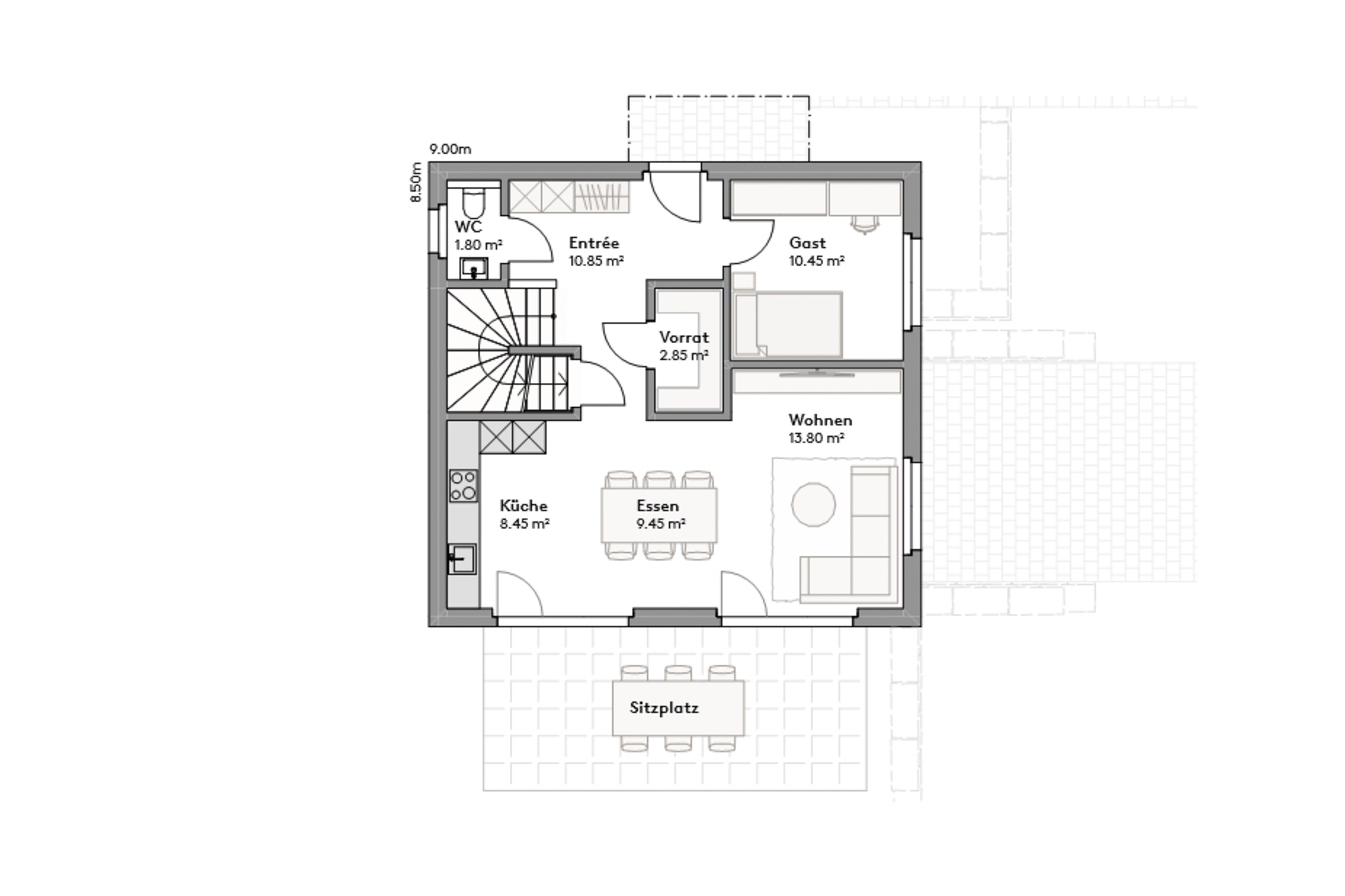
  • 153 m² Wohnfläche
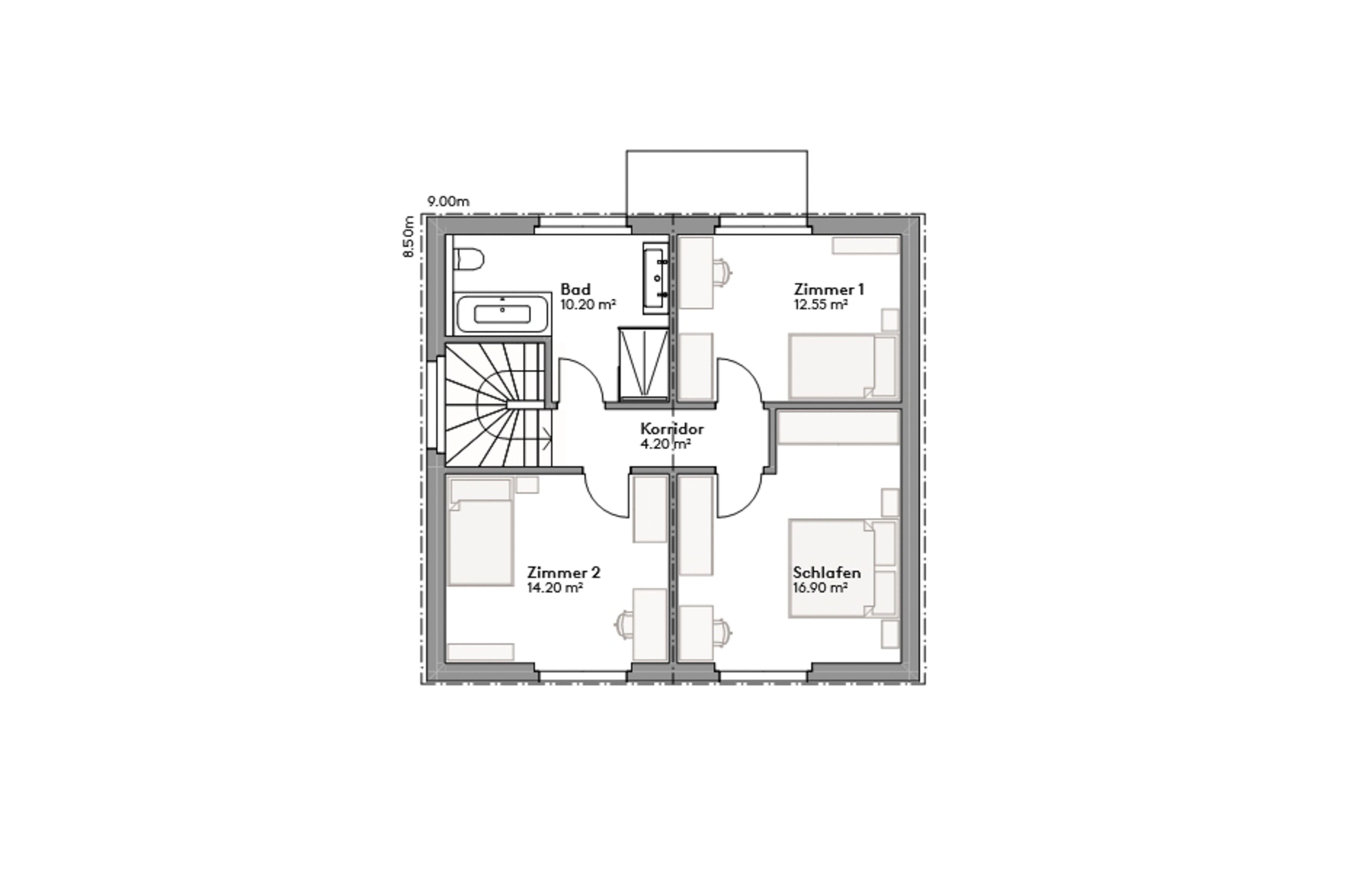
  • 5 ½ Zimmer Einfamilienhaus
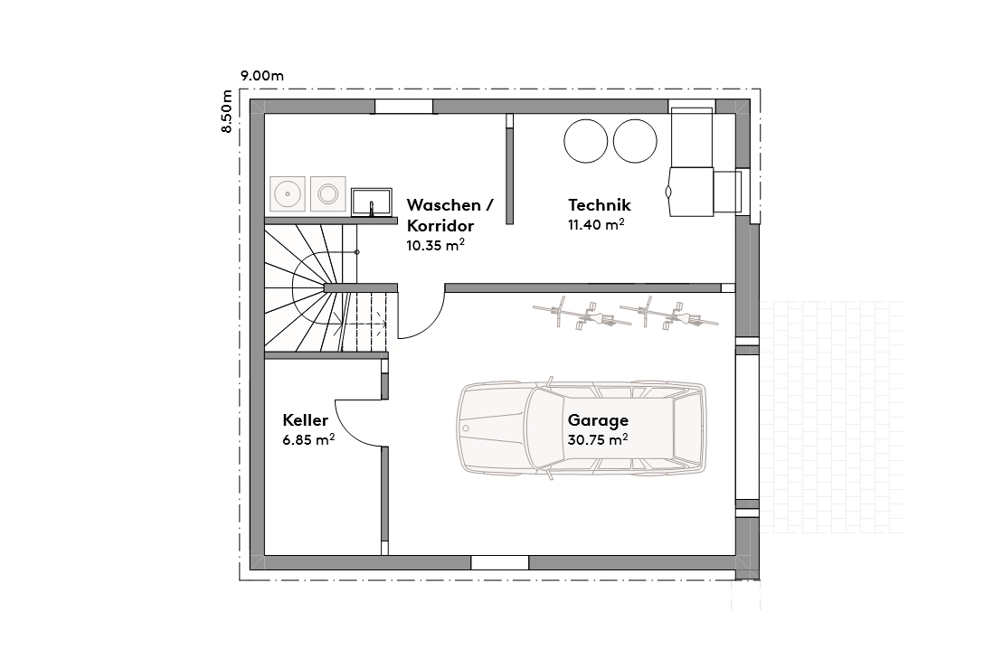
  • Zwei Wohngeschosse und ein Untergeschoss
  • Gedeckter Sitzplatz und übers Eck offener Wohnraum
  • Schöne Zimmer im Obergeschoss mit Balkon
  • Dachgeschoss unter Dachschräge mit 130 cm Kniestockhöhe
  • Garage und Nebenräume im Untergeschoss

Grundrisse,
die überzeugen