Solaris — Grenzenlose Aussicht

Solaris
Highlights

  • 156 m² Wohnfläche
  • 5 ½ bis 6 ½ Zimmer Einfamilienhausteile in zeitloser Architektur
  • Zwei Wohngeschosse und ein Unter- und optional ein Attikageschoss
  • Schalltechnisch optimal getrennte Doppelhaushälften
  • Grosser Disponibel-Raum und Nebenräume im Untergeschoss
  • Offener Wohn-/Ess-/Küchenbereich mit Kochinsel
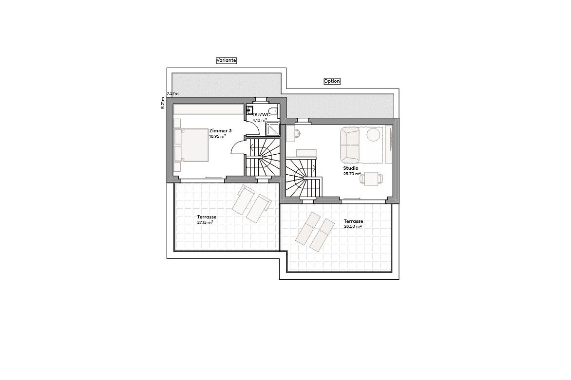
  • Grosszügiger Korridor als Studio im Obergeschoss
  • Optionen: Zusätzliches Attikageschoss als Studio oder als Schlafbereich mit DU/WC und Terrasse, Carport mit Abstellraum oder Garage, verglaste Sitzplatzüberdachung, Ankleideraum beim Schlafzimmer

Grundrisse,
die überzeugen