DEFH Haag — Individuelles Architektenhaus

DEFH Haag
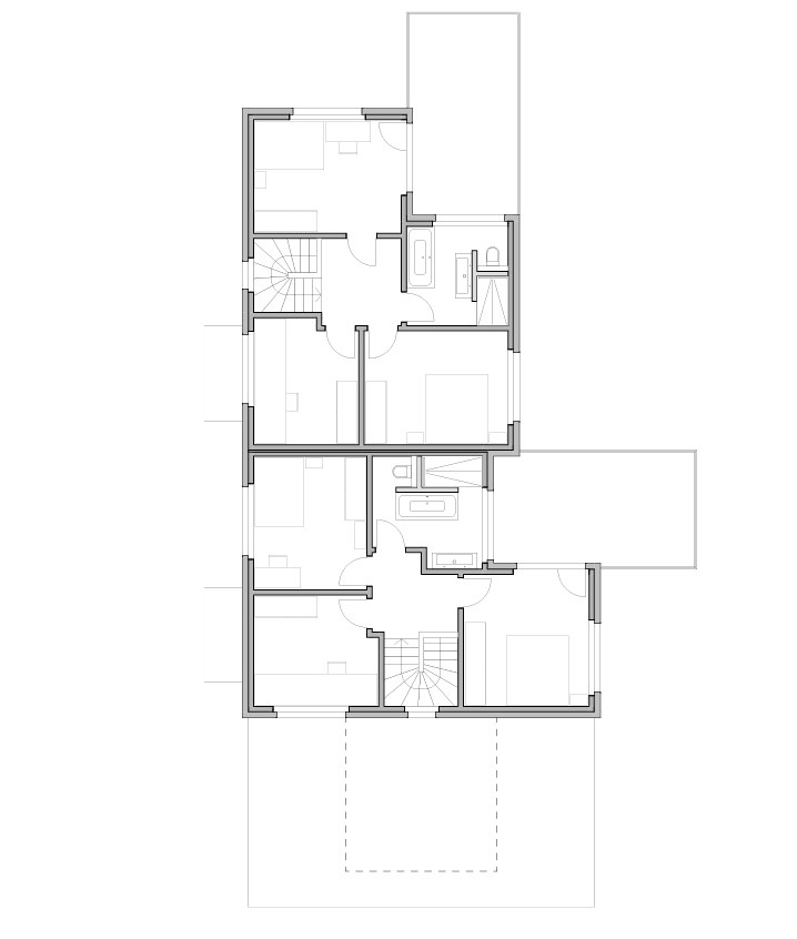
Highlights

  • 4 ½ Zimmer Hausteil
  • 2 Wohngeschosse
  • Carport und Abstellraum als Anbau
  • Offener Wohnraum und vorgezogener gedeckter Sitzplatz im Erdgeschoss
  • Küche mit Kochinsel und Vorratsraum, Technikraum
  • Drei Zimmer, schönes Bad mit begehbarer Dusche und Balkon im Obergeschoss
  • Kubische Architektur, Hauptausrichtung von einander abgedreht

Grundrisse,
die überzeugen