Kikko — Modern geteiltes Wohnen

Kikko
Highlights

  • 282 m² Wohnfläche
  • 6 ½ Zimmer Einfamilienhaus mit 2 ½ Zimmer Einliegerwohnung im Erdgeschoss
  • Zwei Wohngeschosse und ein Untergeschoss
  • Elternschlafzimmer mit Ankleide und Bad im Ober-, Schlafzimmer im Erdgeschoss
  • Grosszügiger Wohn-/Ess-/Küchenbereich im Obergeschoss
  • Terrasse im Obergeschoss, Sitzplatz im Erdgeschoss
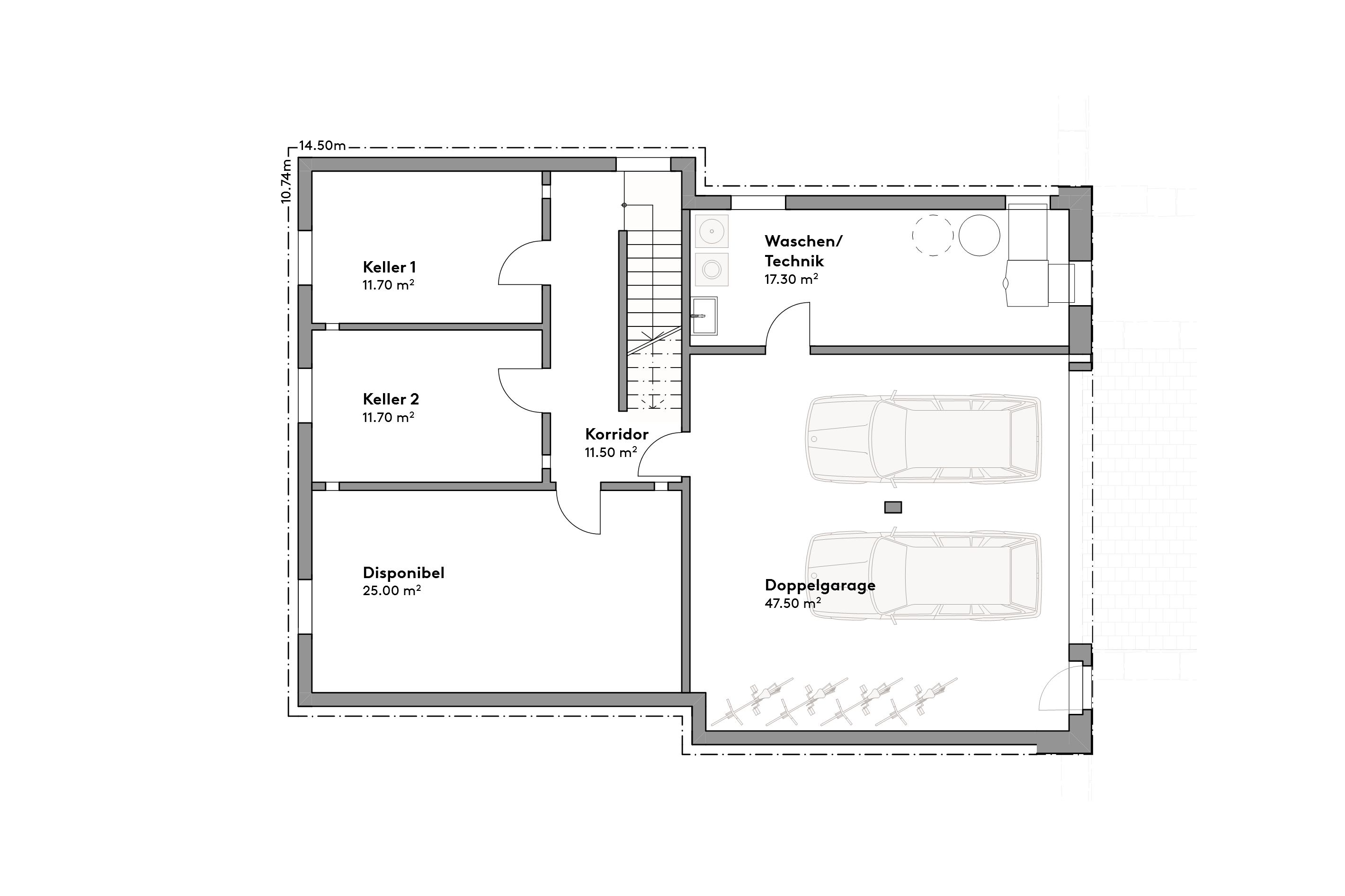
  • Doppelgarage mit zusätzlichem Abstellplatz für Fahrräder im Untergeschoss

Grundrisse,
die überzeugen