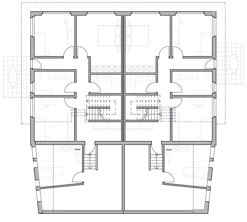
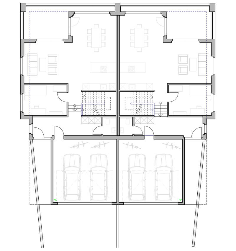
DEFH Staad — Individuelles Architektenhaus

DEFH Staad
Highlights

  • Doppeleinfamilienhaus
  • 5 ½ Zimmer
  • 2 Wohngeschosse, Raumhöhen von 2.80m bis 3.45m
  • Terrasse mit Seesicht
  • Doppelgarage im OG mit direktem Zugang ins Haus
  • Küche mit Kochinsel
  • Schlafbereich im Erdgeschoss, direkter Zugang zum Gartensitzplatz
  • drei Nasszellen
  • grosszügiger Keller

Grundrisse,
die überzeugen