DEFH Lindau — Individuelles Architektenhaus

DEFH Lindau
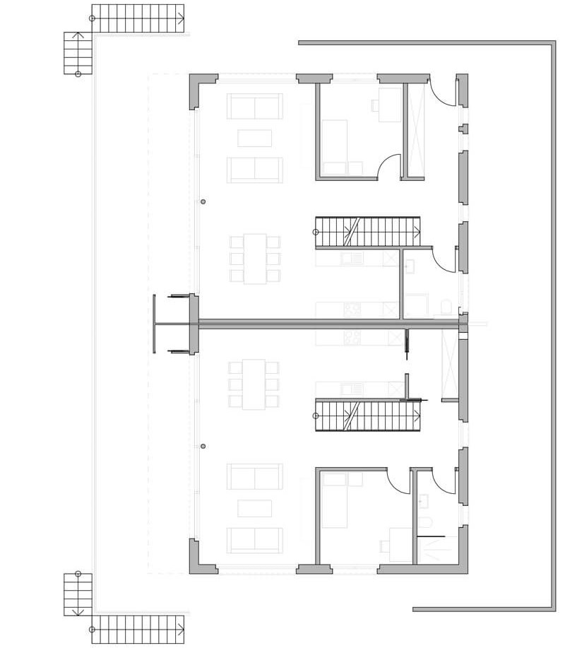
Highlights

  • Doppeleinfamilienhaus
  • 5 ½ Zimmer
  • 2 Wohn- und ein Untergeschoss
  • Garage, Nebenräume und 1x Eingang im Untergeschoss
  • Gerade, innenliegende Treppe
  • Grosse Terrasse
  • Offener Wohn- Ess- und Küchenbereich
  • Elternschlafzimmer mit Ankleide

Grundrisse,
die überzeugen