Prospekt
Kostenlose Prospekt­mappe bestellen
Kontakt

Tiny-House Altstätten

Individuelles Architektenhaus

Tiny-House Altstätten

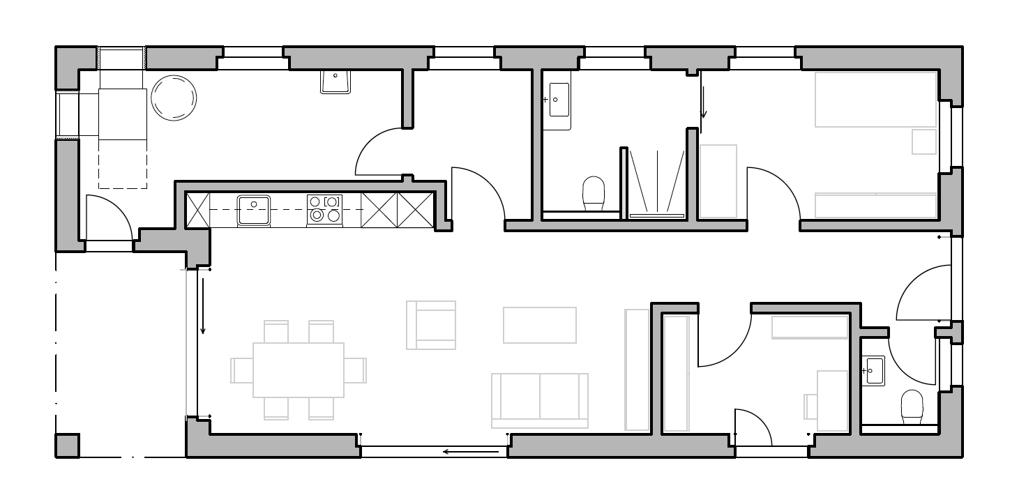
Grundriss

Möchten Sie gerne genauere Details oder weitere Grundrisse nach Mass?

Fordern Sie am besten gleich unsere ausführliche Prospektmappe an.

Projektdetails

  • 3 ½ Zimmer Tiny House
  • Holzhaus mit Lärchenfassade, Gebäudehülle im Minergie-Standard
  • Innenraumaufteilung mit 3 ½ kompakten Zimmern
  • Offener Wohn-, Ess- und Küchenbereich mit kleinem Vorratsraum
  • Ein Schlafzimmer, mit direktem Zugang zum Badezimmer
  • Badezimmer mit offener begehbarer Dusche
  • Innenliegender, geschützter Sitzplatz
  • Optimale Platzausnützung mit Einbauschränken
  • Grosser Estrich im Dachraum

Erdgeschoss
Erdgeschoss

Warum ein Tiny House bauen?

Mit einem Tiny House können Sie den Traum von Eigenheimbesitz verwirklichen, ohne dabei auf Komfort und Stil zu verzichten. Diese kleinen Häuser sind so konzipiert, dass sie optimalen Wohnraum auf kleinstem Raum bieten. Von cleveren Stauraumlösungen bis hin zu multifunktionalen Möbeln – Tiny Houses nutzen jeden Quadratzentimeter effizient aus.

Die Vielseitigkeit von Tiny Houses ist bemerkenswert. Sie können als mobile Wohnlösungen für Reisen und Abenteuer dienen oder als dauerhafte Wohnsitze in verschiedenen Umgebungen genutzt werden. Ihre Flexibilität macht sie zu einer attraktiven Option für Menschen, die nach einem alternativen Lebensstil streben.

Ob Sie nun nach einem gemütlichen Rückzugsort in der Natur suchen oder mitten im städtischen Dschungel wohnen möchten, ein Tiny House kann Ihre Bedürfnisse erfüllen. Mit ihrem charmanten Design und ihrer nachhaltigen Ausrichtung sind Tiny Houses mehr als nur Wohnräume - sie sind Ausdruck eines bewussten Lebensstils.