Prospekt
Kostenlose Prospekt­mappe bestellen
Kontakt

Einfamilienhaus Urdorf

Individuelles Architektenhaus

Einfamilienhaus Urdorf.

Grundriss

Möchten Sie gerne genauere Details oder weitere Grundrisse nach Mass?

Fordern Sie am besten gleich unsere ausführliche Prospektmappe an.

Projektdetails

  • Einfamilienhaus
  • 6 ½ Zimmer
  • 2 Wohn-, 1 Attika- und 1 Untergeschoss
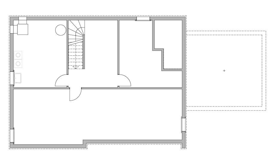
  • Nebenräume und Disponibel im Untergeschoss
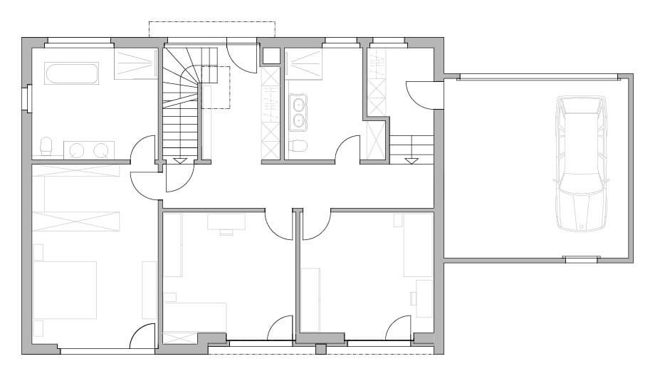
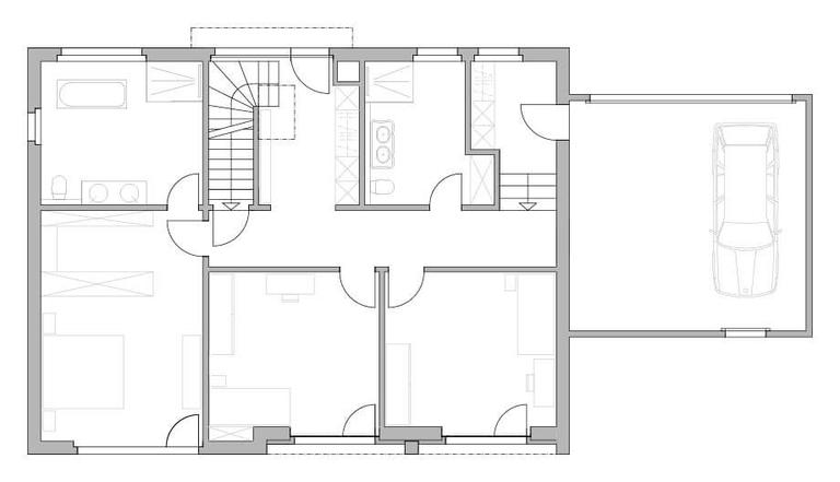
  • Doppelgarage und Eingang im Erdgeschoss
  • Schlafzimmer und 2 Bäder im Erdgeschoss
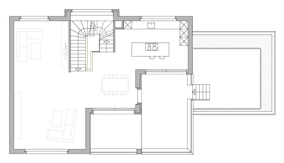
  • Offener Wohn-, Ess- und Küchenbereich mit Terrassen im Obergeschoss
  • Gastzimmer und Büro im Attikageschoss

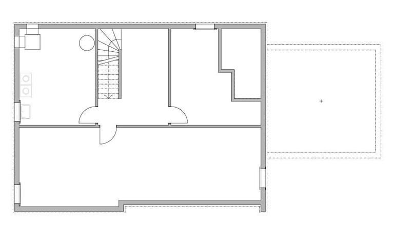
Untergeschoss
Untergeschoss
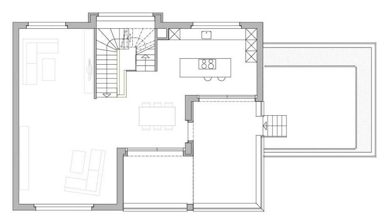
Erdgeschoss
Erdgeschoss
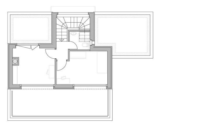
Obergeschoss
Obergeschoss
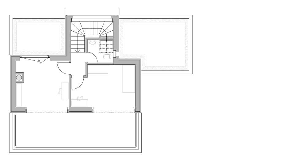
Attika
Attika