Prospekt
Kostenlose Prospekt­mappe bestellen
Kontakt

Einfamilienhaus Oberschan

Individuelles Architektenhaus

Einfamilienhaus Oberschaan.

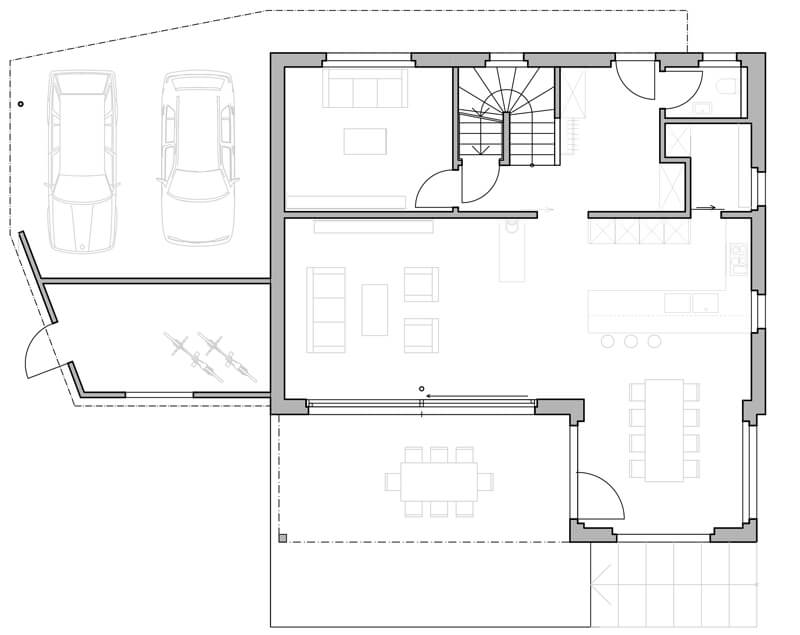
Grundriss

Möchten Sie gerne genauere Details oder weitere Grundrisse nach Mass?

Fordern Sie am besten gleich unsere ausführliche Prospektmappe an.

Projektdetails

  • Einfamilienhaus
  • 6 ½ Zimmer
  • 210 m²
  • 2 Wohn- und 1 Untergeschoss
  • Neben- und Hobbyräume im Untergeschoss
  • Grosser Carport und Veloraum im Parterre
  • Offener Wohn-, Ess- und Küchenbereich im Obergeschoss
  • Küche mit Kochinsel und Vorratsraum
  • Grosse gedeckte Terrasse
  • Schlafzimmer, 2 Bäder und Terrasse im Obergeschoss

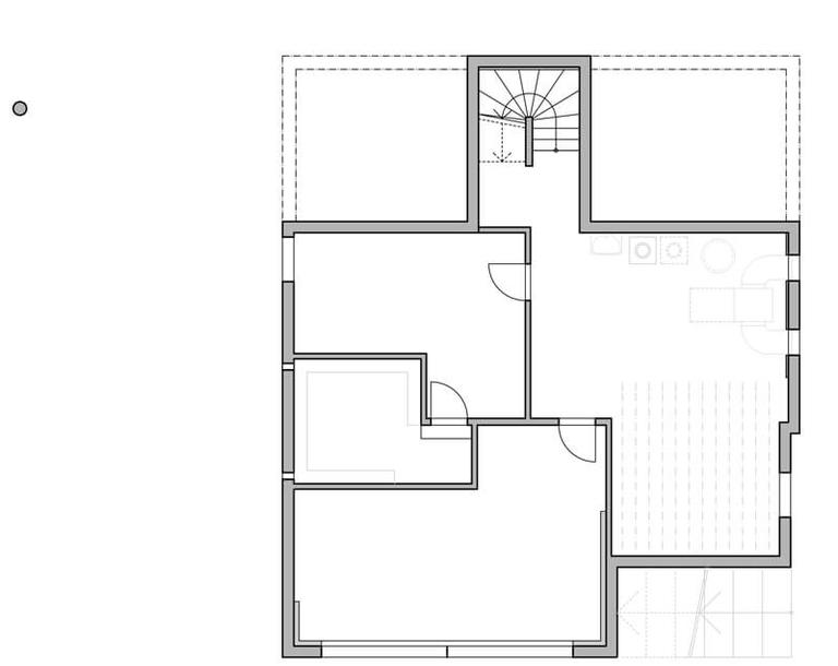
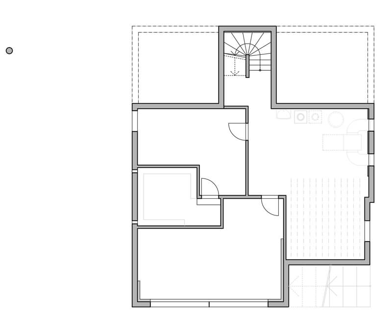
Untergeschoss
Untergeschoss
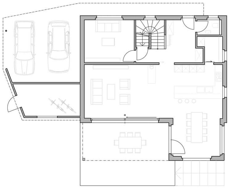
Erdgeschoss
Erdgeschoss
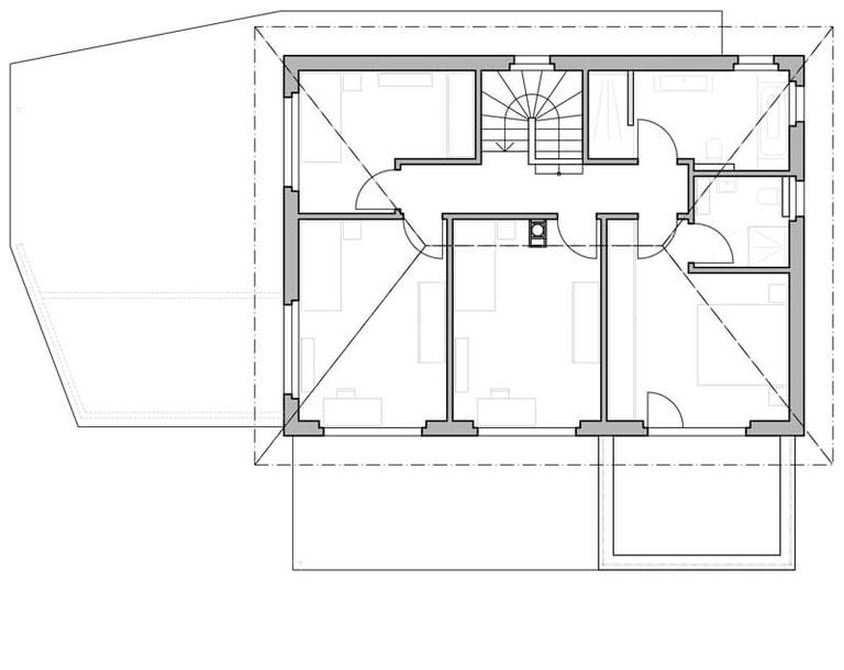
Obergeschoss
Obergeschoss