Prospekt
Kostenlose Prospekt­mappe bestellen
Kontakt

Einfamilienhaus Au

Individuelles Architektenhaus

Einfamilienhaus Au.

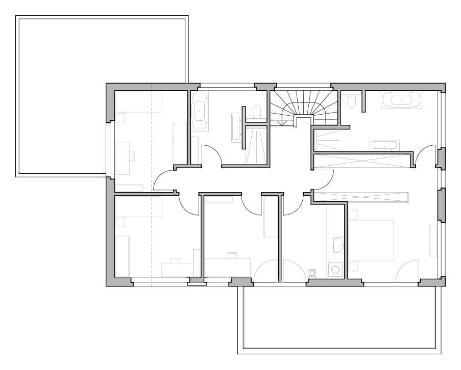
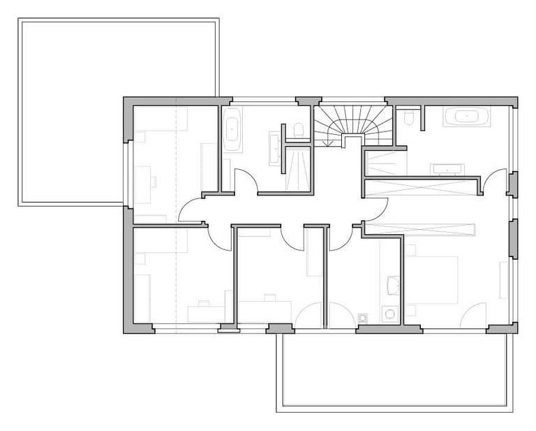
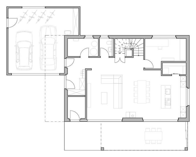
Grundriss

Möchten Sie gerne genauere Details oder weitere Grundrisse nach Mass?

Fordern Sie am besten gleich unsere ausführliche Prospektmappe an.

Projektdetails

  • Einfamilienhaus
  • 6 ½ Zimmer
  • 2 Wohngeschosse, keine Unterkellerung
  • Doppelgarage, Technik und Geräteraum im Erdgeschoss
  • Offener Wohnraum, Küche mit Kochinsel und Vorratsraum, Büro im Erdgeschoss
  • Grosser gedeckter Sitzplatz mit Sonnenstoren und Windschutzverglasung
  • 4 Schlafzimmer, Büro, Ankleide und 2 Badezimmer sowie Balkon im Obergeschoss

Erdgeschoss
Erdgeschoss
Obergeschoss
Obergeschoss