Prospekt
Kostenlose Prospekt­mappe bestellen
Kontakt

MFH Schellenberg

Individuelles Architektenhaus

Mehrfamilienhaus Schellenberg.

Grundriss

Möchten Sie gerne genauere Details oder weitere Grundrisse nach Mass?

Fordern Sie am besten gleich unsere ausführliche Prospektmappe an.

Projektdetails

  • 2x 4 ½ Zimmer-Wohnung
  • 1 Unter- 2 Wohngeschosse
  • Zwei Doppelgaragen und Nebenräume im Untergeschoss
  • Offene Wohnräume und gedeckter Sitzplatz
  • Küche mit Kochinsel und Vorratsraum
  • Drei Schlafzimmer, Ankleide, Büro und 2 Bäder je Wohnung
  • Moderne, geradlinige Architektur
Untergeschoss
Untergeschoss
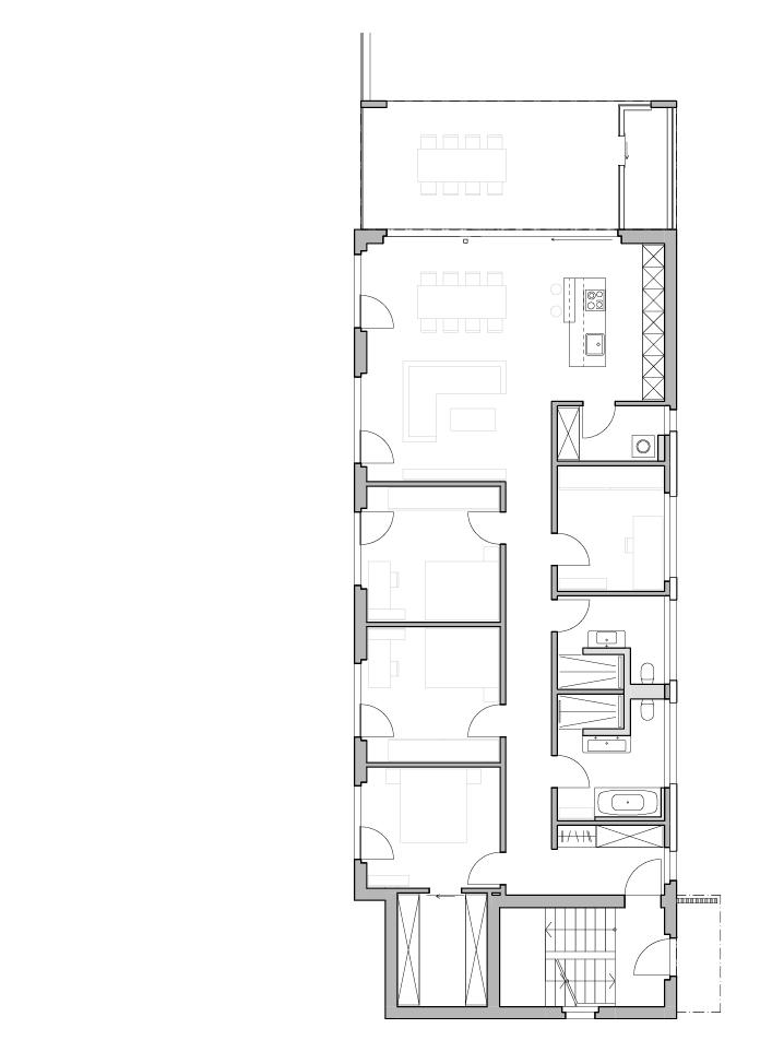
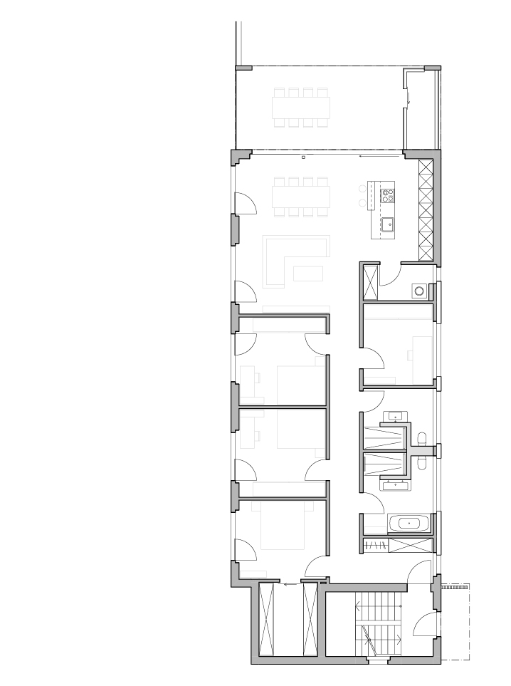
Erdgeschoss
Erdgeschoss
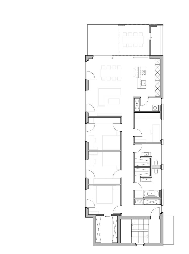
Obergeschoss
Obergeschoss
Bauprojekt Mehrfamilienhaus Schellenberg<br>
Mehrfamilienhaus bauen Schellenberg<br>