Prospekt
Kostenlose Prospekt­mappe bestellen
Kontakt

EFH Widnau

Individuelles Architektenhaus

Einfamilienhaus Widnau.

Grundriss

Möchten Sie gerne genauere Details oder weitere Grundrisse nach Mass?

Fordern Sie am besten gleich unsere ausführliche Prospektmappe an.

Projektdetails

  • Einfamilienhaus
  • 5 ½ Zimmer
  • 2 Wohngeschosse, keine Unterkellerung
  • Doppelgarage im Parterre
  • Offener Wohnbereich
  • Küche mit Kochinsel und Vorratsraum
  • Grosser gedeckter Sitzplatz
  • Elternschlafbereich mit Ankleide und separatem Bad, freistehende Badewanne
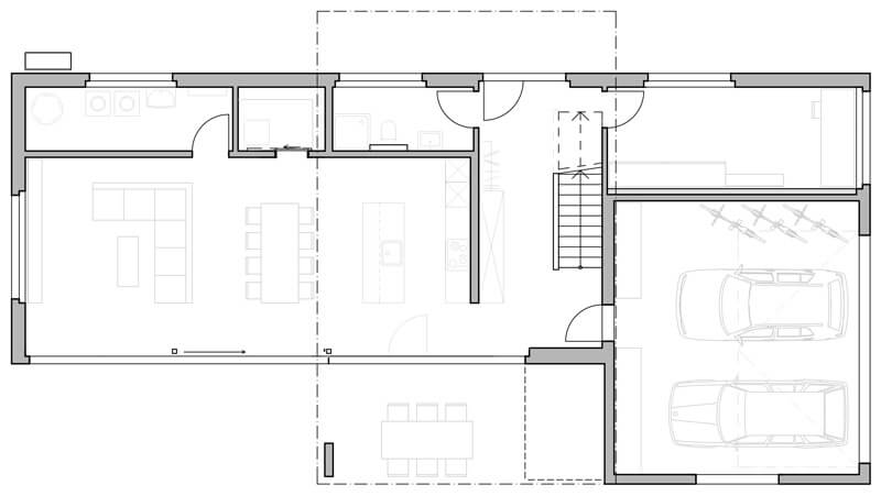
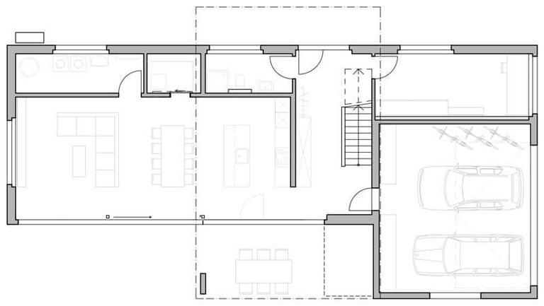
Erdgeschoss
Erdgeschoss
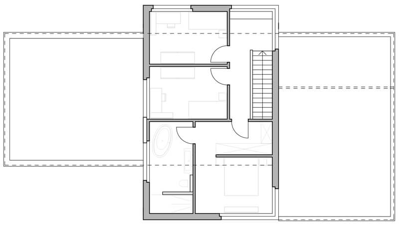
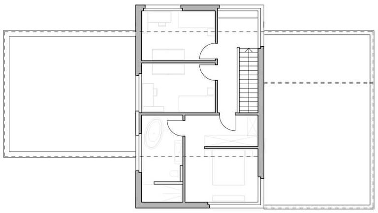
Obergeschoss
Obergeschoss
Einfamilienhaus Widnau
Bauprojekt Einfamilienhaus Widnau