Prospekt
Kostenlose Prospekt­mappe bestellen
Kontakt

EFH Stein

Individuelles Architektenhaus

Einfamilienhaus Stein.

Grundriss

Möchten Sie gerne genauere Details oder weitere Grundrisse nach Mass?

Fordern Sie am besten gleich unsere ausführliche Prospektmappe an.

Projektdetails

  • Generationenhaus / Einfamilienhaus mit Einliegerwohnung
  • 3 ½ & 7 ½ Zimmer
  • 2 Wohn- und 1 Untergeschoss
  • Garagen und Nebenräume im Untergeschoss
  • Gemeinsamer Hauseingang im Zwischengeschoss
  • Schöne Küche, offene Wohnräume und gedeckter Sitzplatz
  • Schlafzimmer, Studio, Atelier und Badezimmer im Obergeschoss
Untergeschoss
Untergeschoss
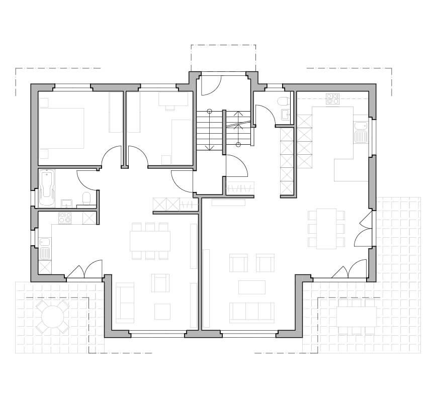
Erdgeschoss
Erdgeschoss
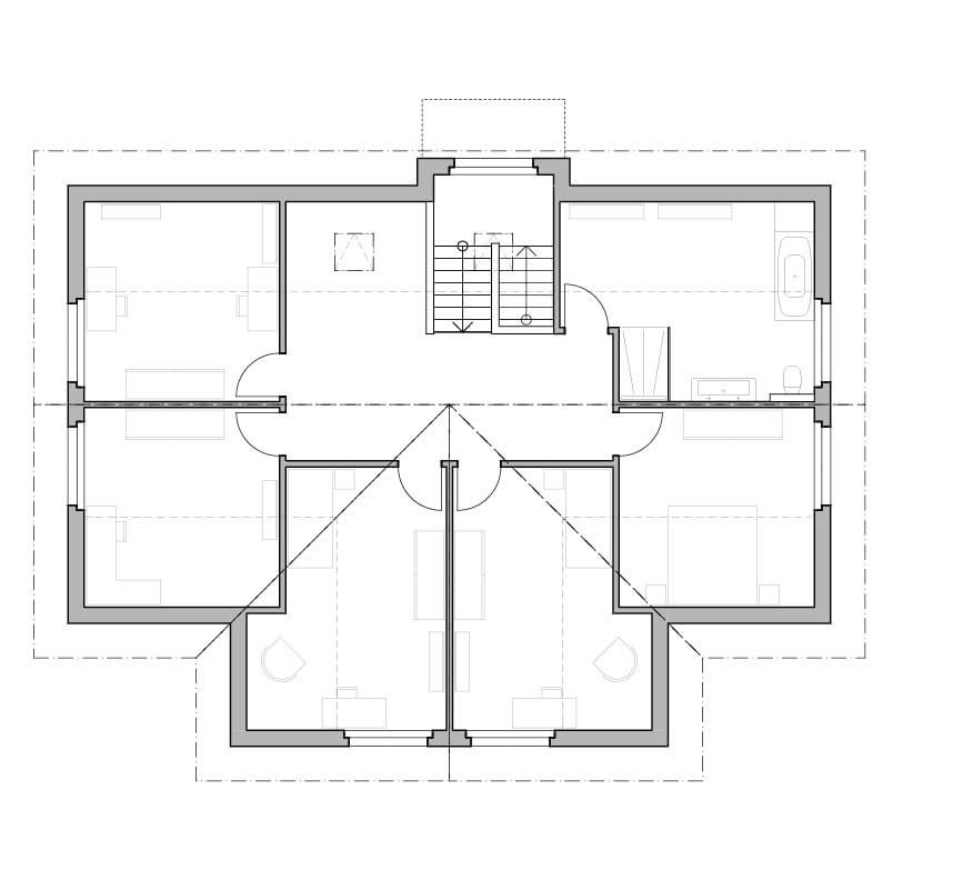
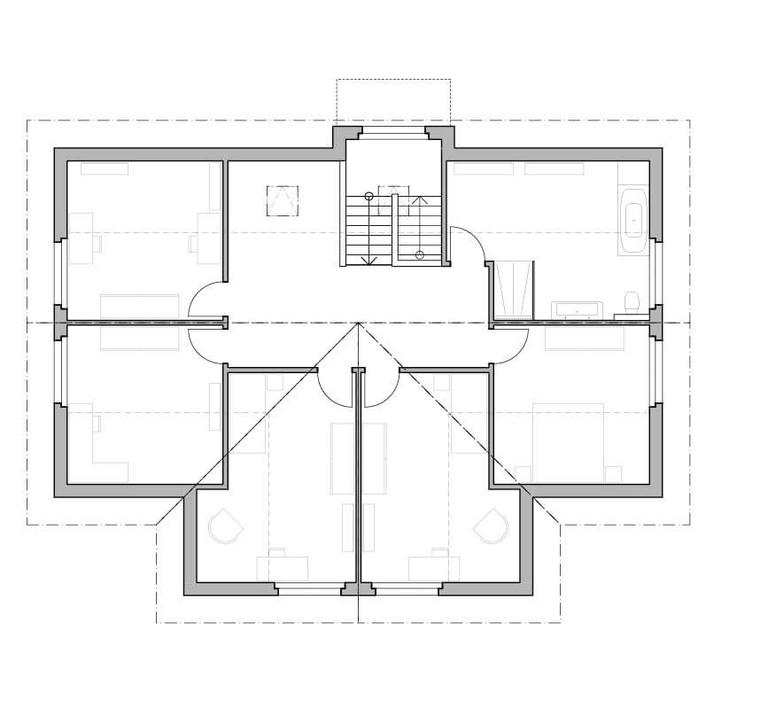
Obergeschoss
Obergeschoss
Einfamilienhaus Stein
Bauprojekt Einfamilienhaus Stein