Prospekt
Kostenlose Prospekt­mappe bestellen
Kontakt

EFH Flurlingen

Individuelles Architektenhaus

Einfamilienhaus Flurlingen.

Grundriss

Möchten Sie gerne genauere Details oder weitere Grundrisse nach Mass?

Fordern Sie am besten gleich unsere ausführliche Prospektmappe an.

Projektdetails

  • Einfamilienhaus
  • 7 ½ Zimmer
  • 1 Wohn-, Attika- und 1 Untergeschoss
  • 3-fach Garage im Untergeschoss
  • Schlafzimmer mit Ankleide
  • Hobbyraum im Untergeschoss
  • Küche mit Kochinsel und Vorratsraum
  • Grosser gedeckter Sitzplatz
  • Elternschlafbereich mit Ankleide und separatem Bad, freistehende Badewanne
  • Nasszelle separat für die Kinder
  • Wohnbereich im Attika: Vorrat, Küche mit Kochinsel, Essen, Wohnen und grosse Terrasse
  • Pool im Garten
Untergeschoss
Untergeschoss
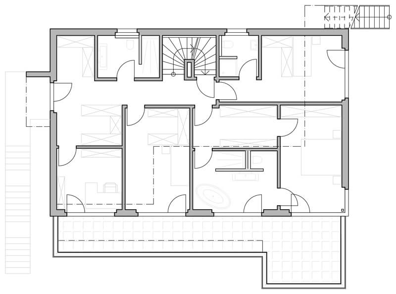
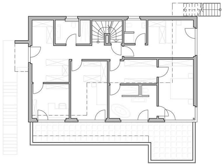
Erdgeschoss
Erdgeschoss
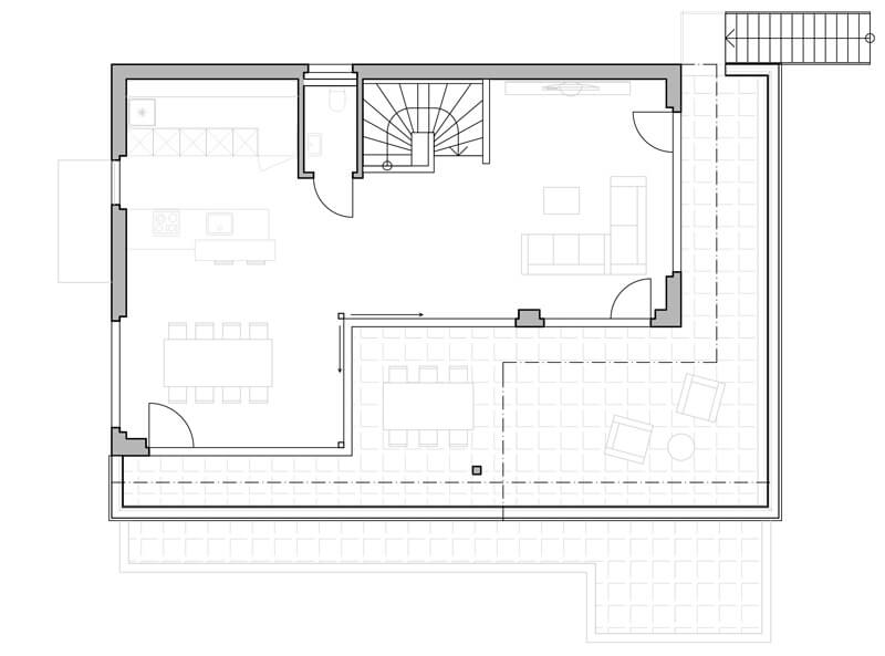
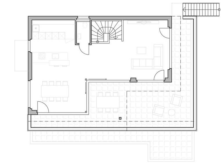
Attika
Attika
Einfamilienhaus Flurlingen
Bauprojekt Einfamilienhaus Flurlingen
Einfamilienhaus bauen Flurlingen<br>