Prospekt
Kostenlose Prospekt­mappe bestellen
Kontakt

EFH Buchs

Individuelles Architektenhaus

Einfamilienhaus Buchs.

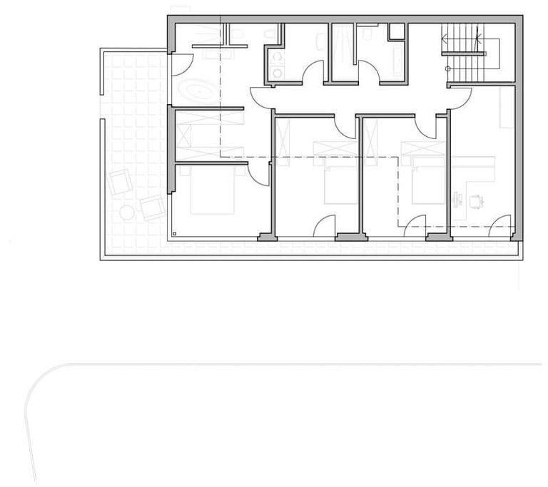
Grundriss

Möchten Sie gerne genauere Details oder weitere Grundrisse nach Mass?

Fordern Sie am besten gleich unsere ausführliche Prospektmappe an.

Projektdetails

  • Einfamilienhaus
  • 6 ½ Zimmer
  • 2 Wohn- und 1 Untergeschoss
  • Doppelgarage und Eingang im UG
  • Wohnbereich im OG
  • Grosse Terrasse mit Aussicht
  • Küche mit Kochinsel und Vorratsraum
  • Elternschlafbereich im EG mit Ankleide und separatem Bad, freistehende Badewanne
  • drei Nasszellen
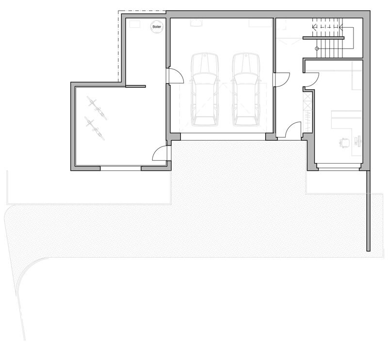
Untergeschoss
Untergeschoss
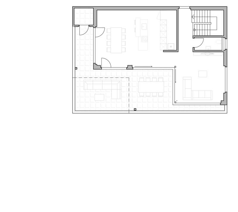
Erdgeschoss
Erdgeschoss
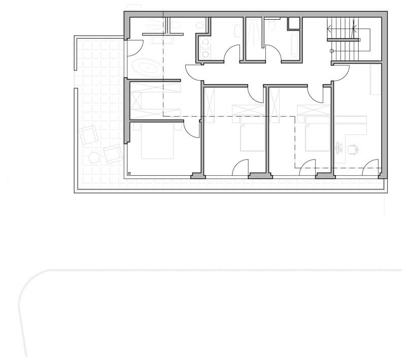
Obergeschoss
Obergeschoss
Einfamilienhaus Buchs
Bauprojekt Einfamilienhaus Buchs<br>
Einfamilienhaus bauen Buchs<br>