Prospekt
Kostenlose Prospekt­mappe bestellen
Kontakt

EFH Arnegg

Individuelles Architektenhaus

Einfamilienhaus Arnegg.

Grundriss

Möchten Sie gerne genauere Details oder weitere Grundrisse nach Mass?

Fordern Sie am besten gleich unsere ausführliche Prospektmappe an.

Projektdetails

  • Generationenhaus / Einfamilienhaus mit Einliegerwohnung
  • 1 & 6 ½ Zimmer
  • 2 Wohn- und 1 Attikageschoss
  • Garage und Nebenräume im Erdgeschoss
  • Einliegerwohnung und Wohnräume im Erdgeschoss
  • Offener Wohnbereich mit Küche/Kochinsel und Vorrat
  • Büro, Schlafz- und Badezimmer im Obergeschoss
  • Elternbereich mit Badezimmer, Ankleide und Terrasse im Attikageschoss
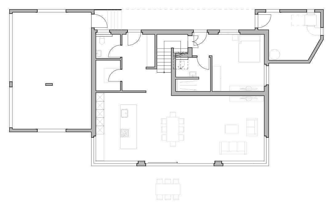
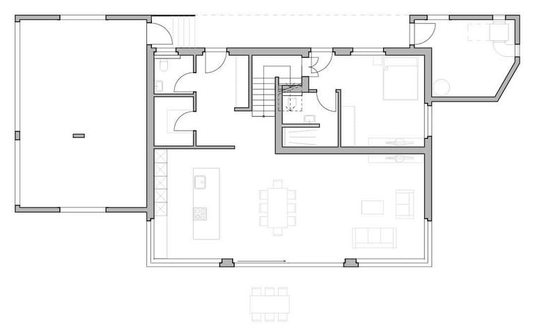
Erdgeschoss
Erdgeschoss
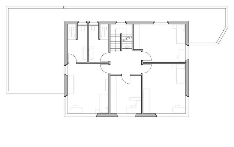
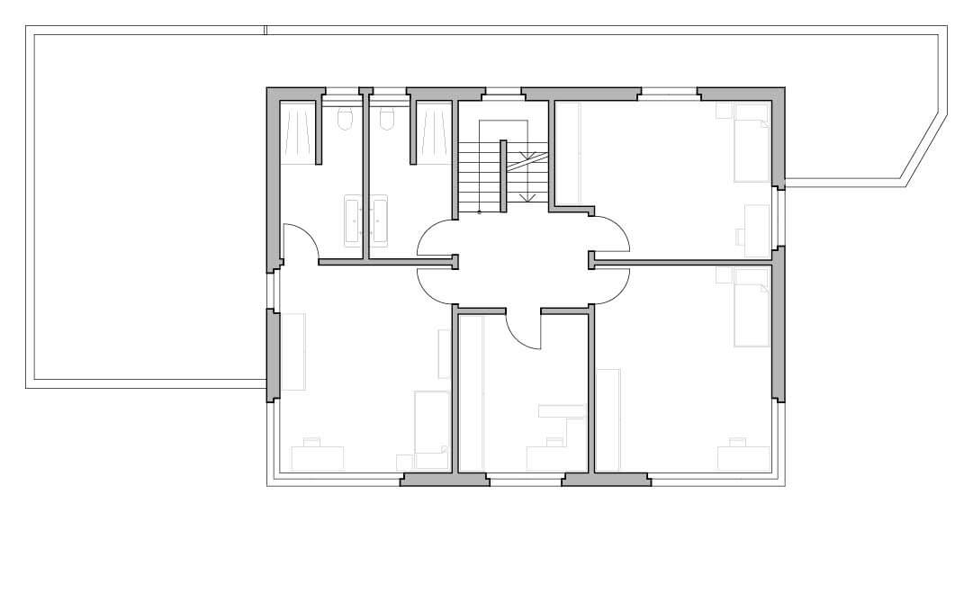
Obergeschoss
Obergeschoss
Attika
Attika
Einfamilienhaus Arnegg
Bauprojekt Einfamilienhaus Arnegg
Einfamilienhaus bauen Arnegg<br>