Prospekt
Kostenlose Prospekt­mappe bestellen
Kontakt

EFH Gams

Individuelles Architektenhaus

Einfamilienhaus Gams.

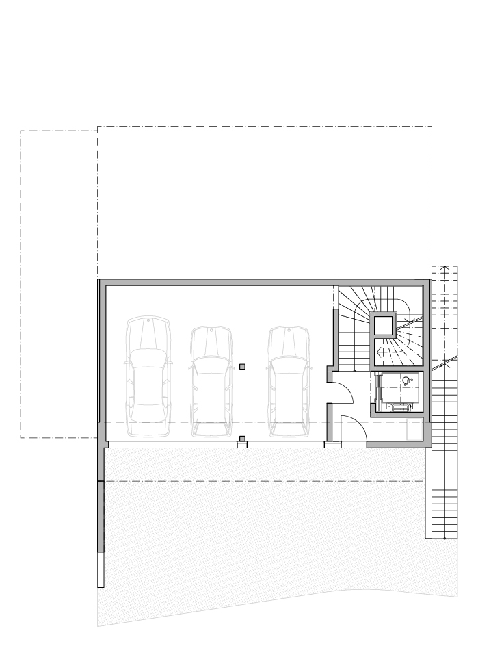
Grundriss

Möchten Sie gerne genauere Details oder weitere Grundrisse nach Mass?

Fordern Sie am besten gleich unsere ausführliche Prospektmappe an.

Projektdetails

  • 5 ½ Zimmer
  • 1 Unter- und 2 Wohngeschosse
  • Grosse überhöhte, Kellereingang und Lift im Untergeschoss
  • Separate Hauseingänge im Erdgeschoss
  • Masterschlafzimmer mit Ankleide und Wohlfühlbad im Erdgeschoss
  • Kinderzimmer mit Bad, Nebenräume und Hauseingang
  • Offener Wohnraum und grosser, gedeckter Sitzplatz im Obergeschoss
  • Küche mit Kochinsel, Cheminée als Raumtrenner
  • Büroräume und Gäste-WC
Untergeschoss
Untergeschoss
Erdgeschoss
Erdgeschoss
Obergeschoss
Obergeschoss