Prospekt
Kostenlose Prospekt­mappe bestellen
Kontakt

EFH Uzwil

Individuelles Architektenhaus

Einfamilienhaus Uzwil.

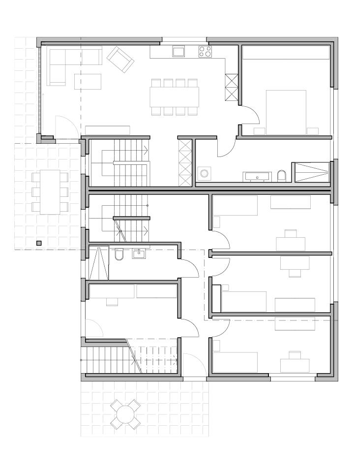
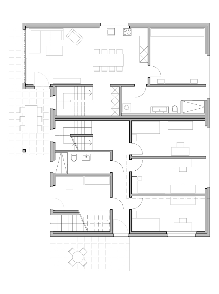
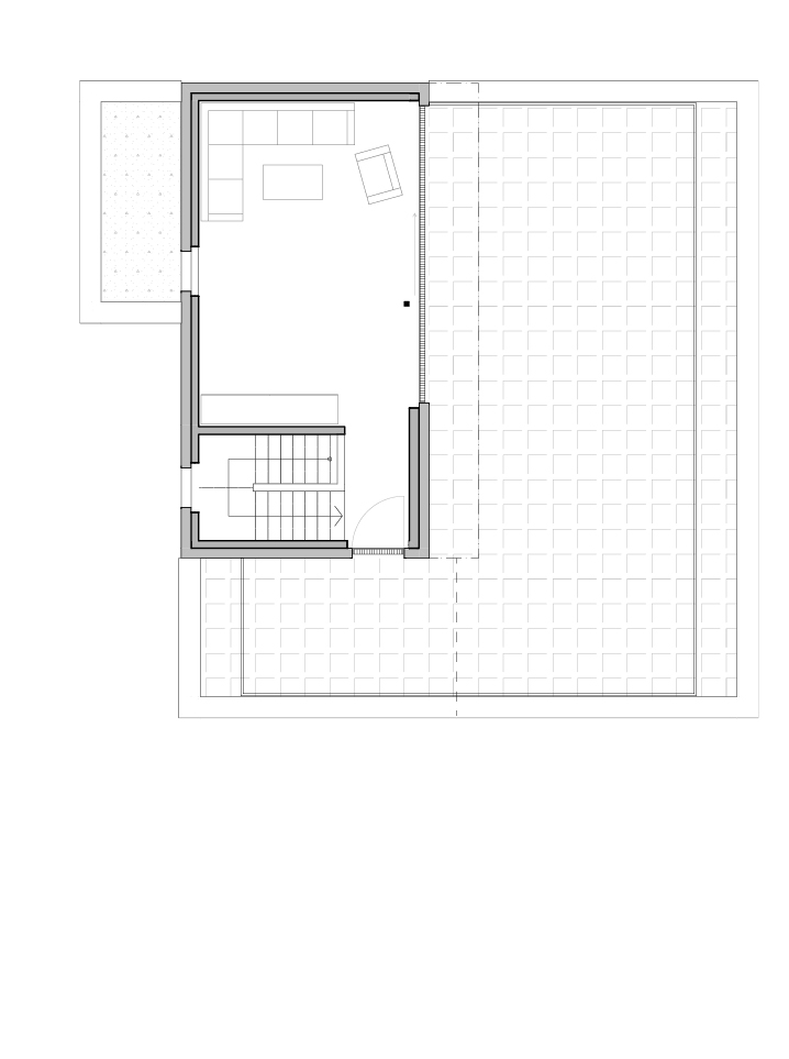
Grundriss

Möchten Sie gerne genauere Details oder weitere Grundrisse nach Mass?

Fordern Sie am besten gleich unsere ausführliche Prospektmappe an.

Projektdetails

  • 7 ½ & 3 ½ Zimmer Wohnung
  • 1 Unter-, 2 Wohn- und 1 Attikageschoss
  • Garagen, gemeinsamer rHauseingang, ein Zimmer und Nebenräume im Untergeschoss
  • Einliegerwohnung 2-Stöckig und Kinderzimmer im EG
  • Offene Wohnraum, Terrasse mit Gartentreppe und gedeckter Sitzplatz im Erdgeschoss
  • Küche mit Kochinsel und Vorratsraum
  • Elternschlafbereich mit Ankleide und Bad
  • Studio und Terrasse im Attikageschoss
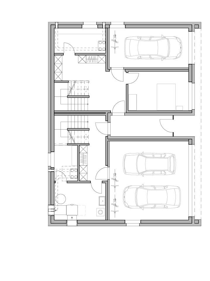
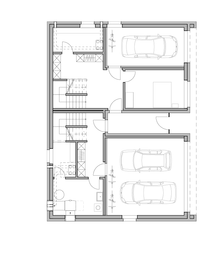
Untergeschoss
Untergeschoss
Erdgeschoss
Erdgeschoss
Obergeschoss
Obergeschoss
Attika
Attika