Prospekt
Kostenlose Prospekt­mappe bestellen
Kontakt

Mehrfamilienhaus Appenzell

Verspielte Architektur
Hauspreis
über 800 (Hauspreis in 1‘000 CHF) / Preis auf Anfrage

Praktisch angeordnete Wohneinheiten.

Hausdetails

  • 3 Wohn-, 1 Dach- und 1 Untergeschoss
  • 7 Wohnungen (3 x 3 ½, 3 x 4 ½, und 1 x 5 ½ Zimmer)
  • Grosse Tiefgarage
  • Verspielte Architektur
  • Praktisch angeordnete Grundrisse
  • Grosse Balkone und Terrassen mit Abstellfläche
  • Offener Küchen-, Ess- und Wohnbereich
  • Schöne Badezimmer
  • Grosszügige Wohnungseingänge mit Garderobe
  • Waschmöglichkeit in der Wohnung
  • Dachwohnungen im Wohnraum offen bis Dachschräge
  • Abstellschrank auf dem Balkon

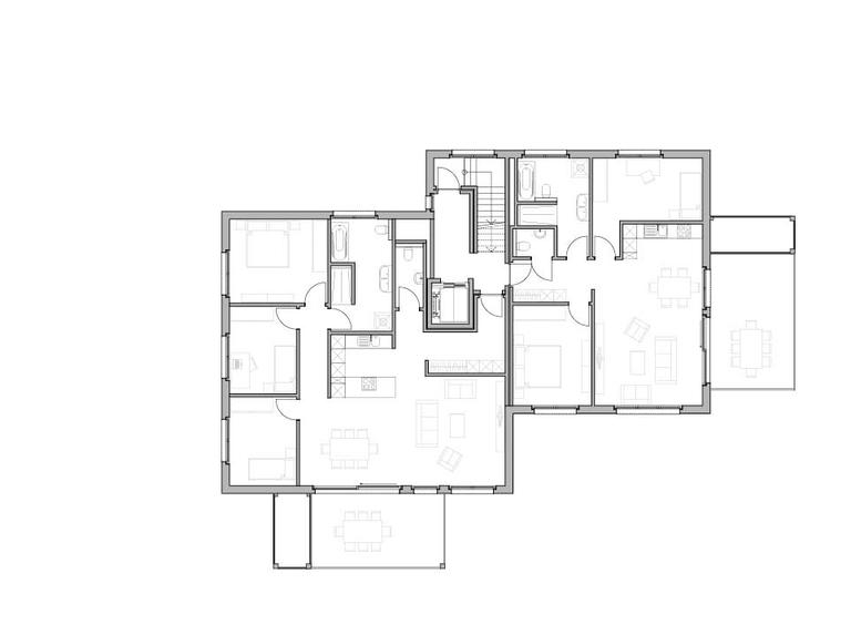
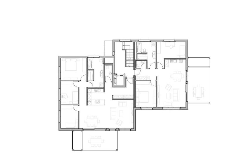
Grundriss

Möchten Sie gerne genauere Details oder weitere Mehrfamilienhaus Grundrisse nach Mass?

Fordern Sie am besten gleich unsere ausführliche Prospektmappe an.

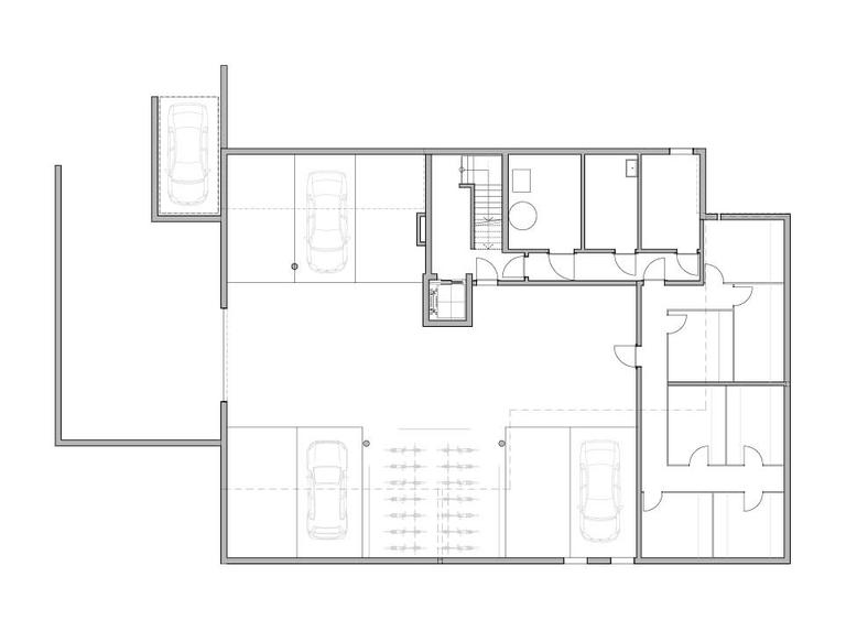
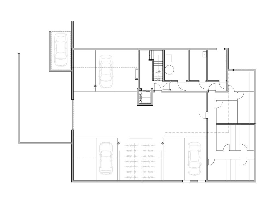
Untergeschoss
Untergeschoss
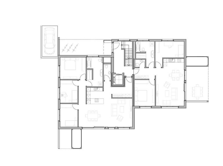
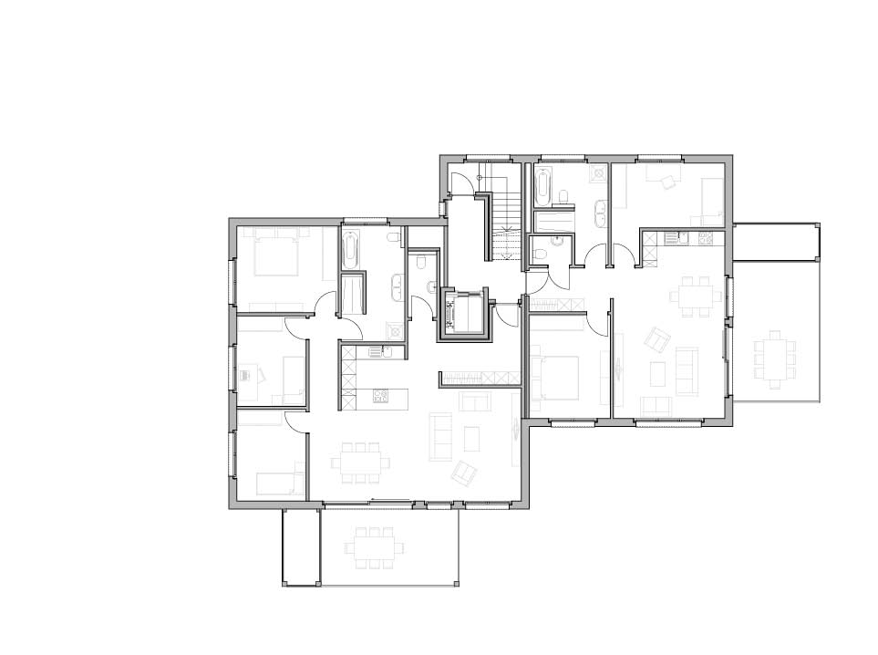
Erdgeschoss
Erdgeschoss
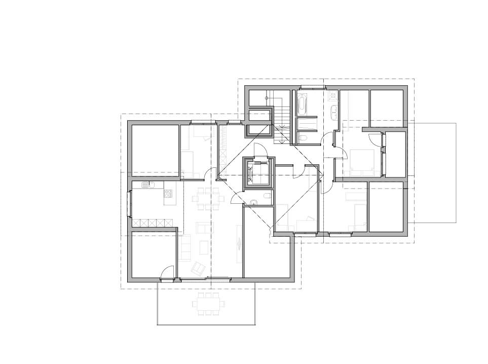
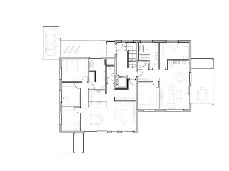
Obergeschoss 1
Obergeschoss 1
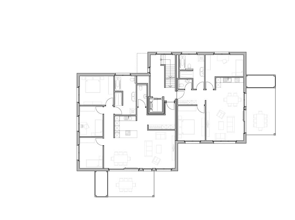
Obergeschoss 2
Obergeschoss 2
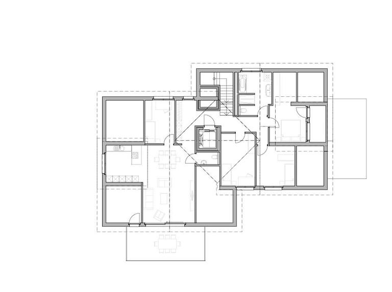
Dachgeschoss
Dachgeschoss