Prospekt
Kostenlose Prospekt­mappe bestellen
Kontakt

CALIFA

247 m² Wohnfläche
Hauspreis
825 - 850  (Hauspreis in 1´000 CHF)

Durchdachtes Wohnkonzept.

Grundriss

Möchten Sie gerne genauere Details oder weitere Einfamilienhaus Grundrisse nach Mass?

Fordern Sie am besten gleich unsere ausführliche Prospektmappe an.

Hausdetails

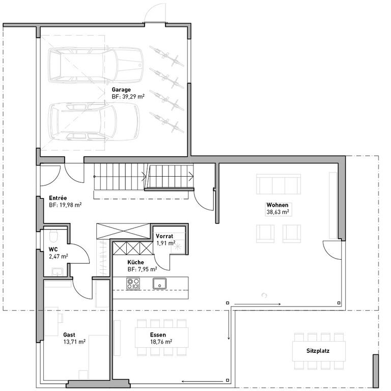
  • 5 ½ Zimmer Einfamilienhaus
  • Zwei Wohngeschosse und ein Untergeschoss
  • Ebenerdige Doppelgarage
  • Grosser gedeckter Sitzplatz flankiert von offenem Wohn-Essbereich
  • Zentrale Küche mit Kochinsel und Vorratsraum
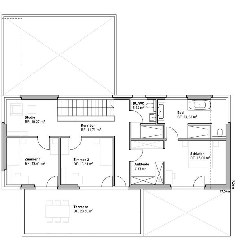
  • Helle Schlafzimmer, teils mit vorgelagerter Terrasse, Ankleide oder separatem Bad
  • Viele Variationsmöglichkeiten
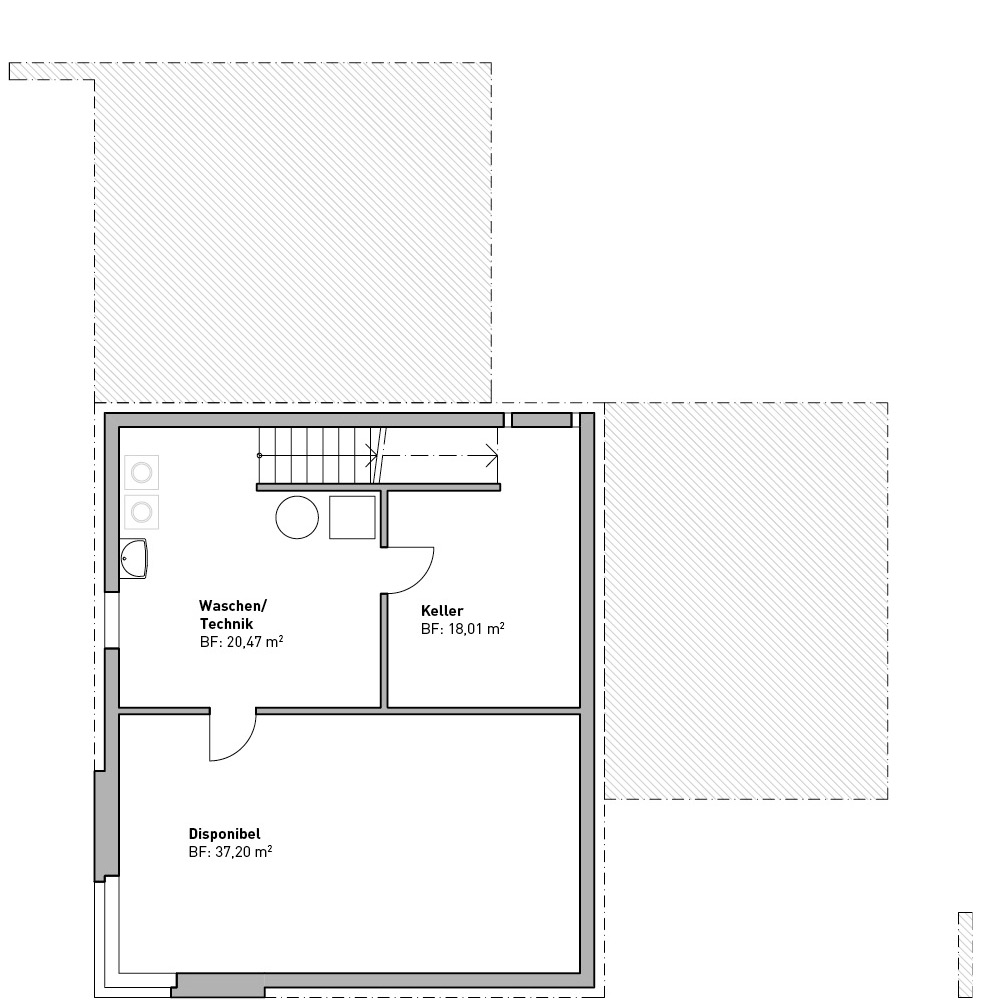
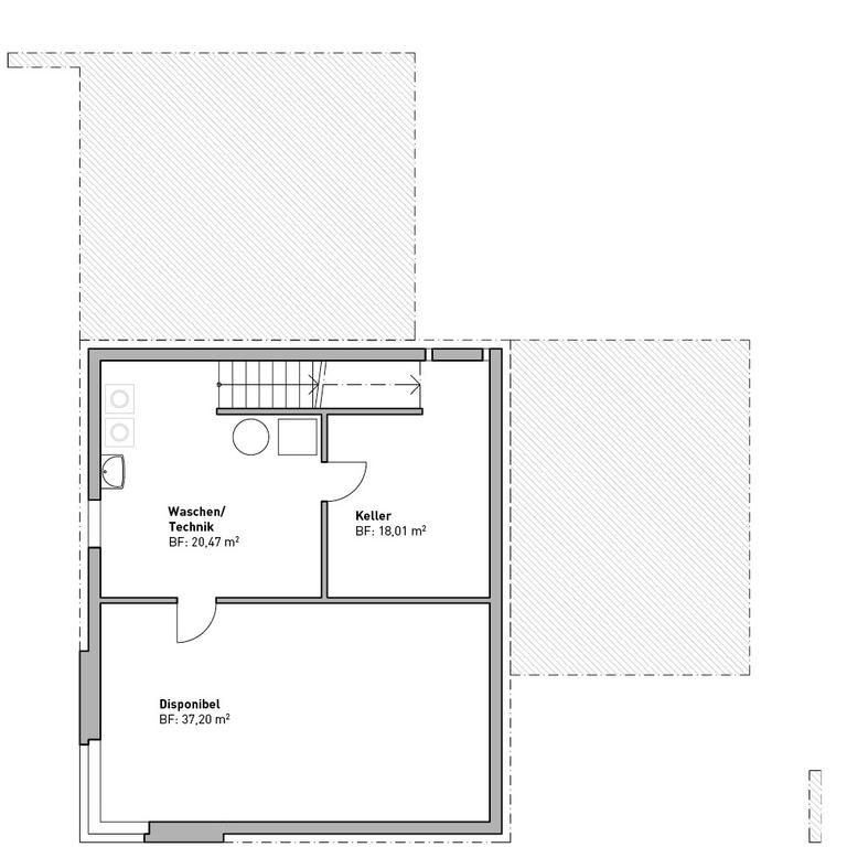
Untergeschoss
Untergeschoss
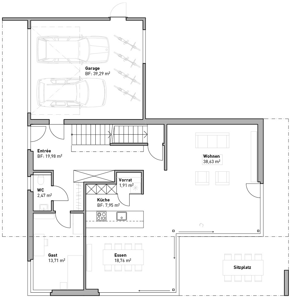
Erdgeschoss
Erdgeschoss
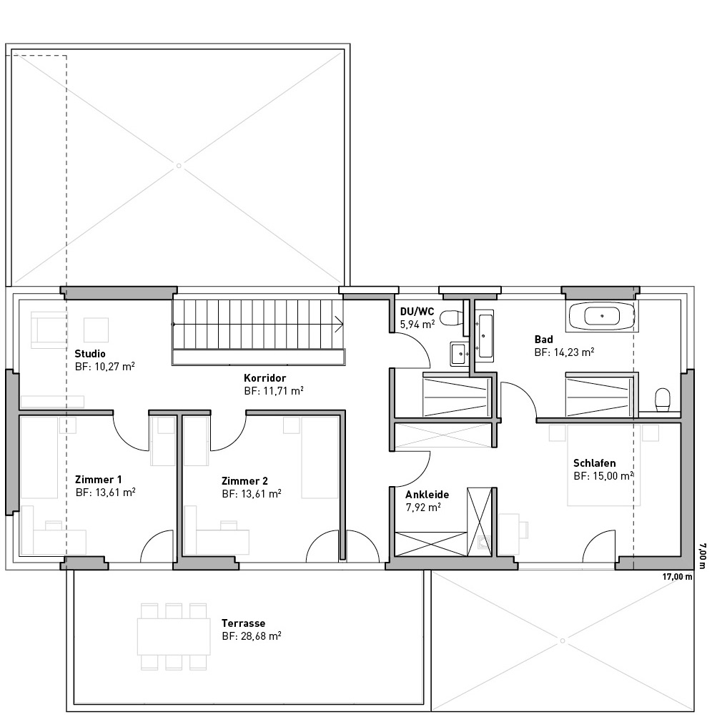
Obergeschoss
Obergeschoss