Prospekt
Kostenlose Prospekt­mappe bestellen
Kontakt

ALICO

173 m² Wohnfläche
Hauspreis
550 - 575  (Hauspreis in 1´000 CHF)

Lichtdurchflutete Volumen.

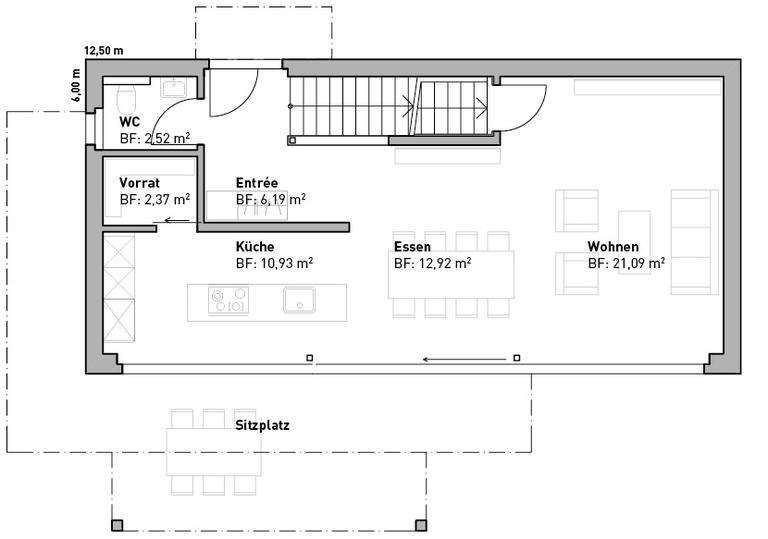
Grundriss

Möchten Sie gerne genauere Details oder weitere Einfamilienhaus Grundrisse nach Mass?

Fordern Sie am besten gleich unsere ausführliche Prospektmappe an.

Hausdetails

  • 5 ½ Zimmer Einfamilienhaus
  • Zwei Wohngeschosse und ein Untergeschoss
  • Wohngeschoss im Loftstil
  • Extravagante Küche, Vorratsraum
  • Grosser gedeckter Sitzplatz
  • Schöne, helle Schlafzimmer mit Platz für Ankleide
  • Viele Nebenräume, Disponibelraum
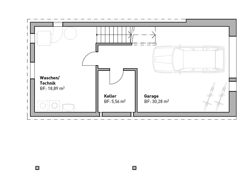
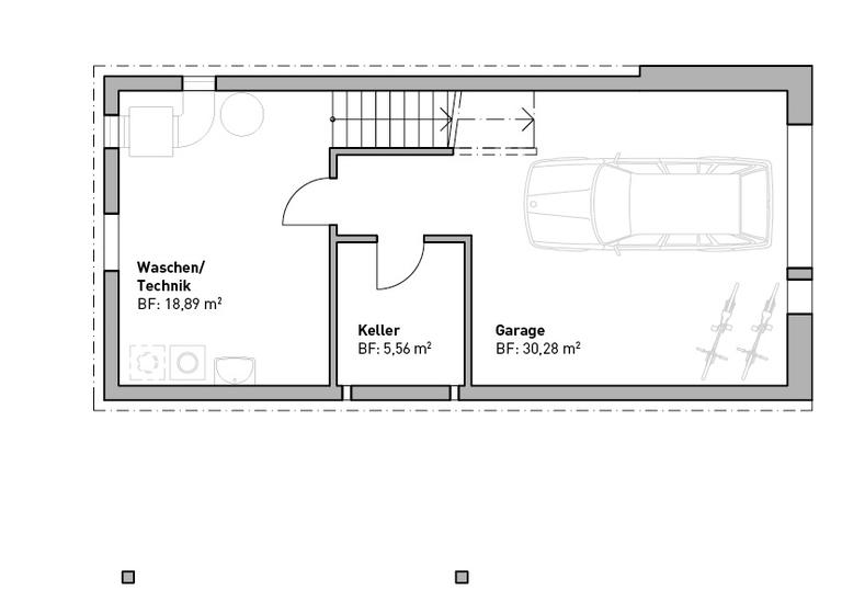
Untergeschoss
Untergeschoss
Erdgeschoss
Erdgeschoss
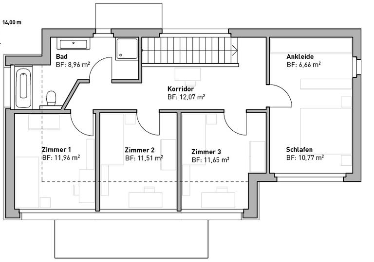
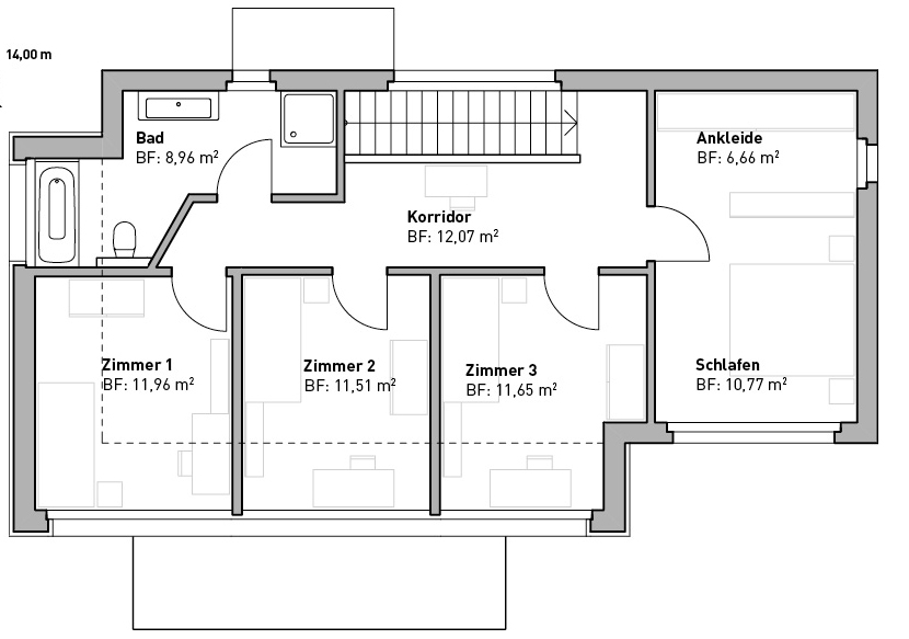
Obergeschoss
Obergeschoss